Vente Local commercial 92250, La Garenne-Colombes france 388 500 €
Descriptif du bien
Iad France - David Baguet (06 07 09 80 14) vous propose : Opportunité rare, construisez votre futur cabinet médical, vos futurs bureaux ou local d'activité ainsi que votre appartement avec terrasse et jardin en plein coeur de La Garenne Colombes.
Vous bénéficiez d'un permis de construire purgé de tout recours des tiers et de tout retrait par la mairie. Tout est à construire.
Situé dans un quartier recherché, le hangar actuel, adossé à une copropriété, est à démolir en vue de la construction de votre futur projet.
Vous pourrez édifier un immeuble de 218 m² environ sur 3 niveaux ainsi qu'une terrasse, vous bénécierez également d'un jardin privé de 55 m² environ, offrant un espace extérieur idéal pour la détente.
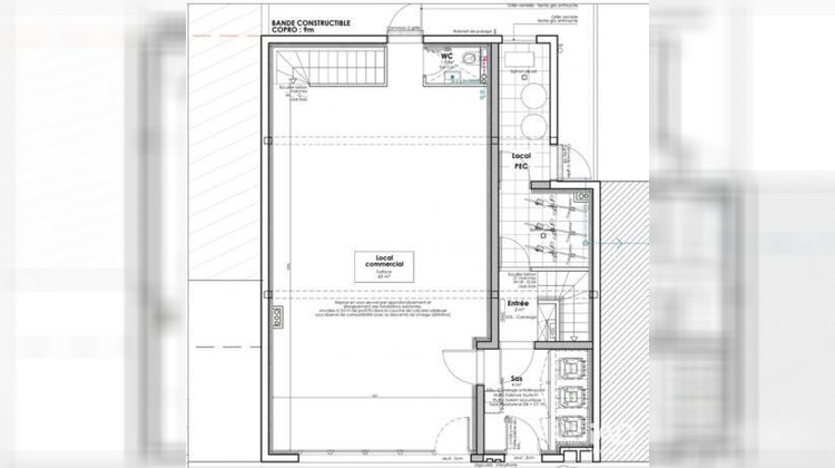
Le local commercial offre une belle surface de 62 m² environ en rdc ainsi q'un sous sol de 87 m² environ soit un total de 150 m² environ.
À l'étage vous pourrez créer un appartement de 68 m² environ comprenant un séjour, une cuisine, 2 chambres, une salle d'eau et wc. Enfin le dernier étage accueil une terrasse de 40 m² environ en roof top orientée Sud-Ouest.
Le coût de construction de ce projet est à la charge du futur acquéreur.
Un parking-box, situé à proximité, complète ce bien.
Contactez-moi dès maintenant pour plus d'informations et pour organiser une visite.
Information d'affichage énergétique sur le bien associé à cette annonce : DPE NS indice et GES NS indice. La présente annonce immobilière a été rédigée sous la responsabilité éditoriale de M. David Baguet (ID 56339), Agent Commercial mandataire en immobilier immatriculé au Registre Spécial des Agents Commerciaux (RSAC) du Tribunal de Commerce de NANTERRE sous le numéro 493519581
Retrouvez tous nos biens sur notre site internet. www.iadfrance.fr.Informations LOI ALUR : Honoraires charge vendeur. (gedeon_6727_32800705)
- Type de bien : Local commercial
- Surface : 218 m²
- Localisation : France - ile-de-france - Hauts de Seine
- Ville : La Garenne-Colombes
- Code postal : 92250
- Annonce créée le 16/04/2026





