Vente Local commercial 83600, FREJUS france 342 500 €
Descriptif du bien
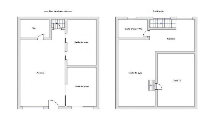
Stratégiquement implanté dans le quartier de Fréjus Plage, proche St Raphael, je vous propose ce local commercial composé de 2 niveaux pour une surface totale de 113m² dont 100m² carrez. Actuellement utilisé par une kinésithérapeute, il peut recevoir tout type de profession libérale, de préférence de santé. Entièrement rénové il y a quelques années, il dispose notamment de vidéo surveillance, climatisation réversible, double vitrage, volets roulants motorisés. RDC : Accueil + 2 pièces + 1 grand sanitaire Etage (via escalier interne) : pièce avec cuisine ouverte sur un autre espace avec parquet + pièce borgne stockage + salle d'eau avec WC. Jouissance d'une terrasse de 14m² devant l'entrée du local Charges de copropriété et taxe foncière raisonnables N'hésitez pas à me contacter pour plus de renseignements Le bien comprend 1 lot, et il est situé dans une copropriété de 203 lots (les charges courantes annuelles moyennes de copropriété sont de 1292 € et le syndicat des copropriétaires ne fait pas l'objet d'une procédure citée à l'article L. 721-1 du code de la construction et de l'habitation). Les informations sur les risques auxquels ce bien est exposé sont disponibles sur le site Géorisques : www.georisques.gouv.fr Prix de vente honoraires d'agence inclus : 342 500 € HT + 2 500 € TVA, soit 345 000 € TTC Prix de vente hors honoraires d'agence : 330 000 € HT + 0 € TVA, soit 330 000 € TTC Honoraires d'agence : 12 500 € HT + 2 500 € TVA, soit 15 000 € TTC (4.55 % TTC du prix de vente hors honoraires d'agence) Honoraires charge acquéreur Contactez votre consultant megAgence : Samanta RANCAGNO, Tél. : 0783382850, E-mail : samanta.rancagno@megagence.com - EI - Agent commercial immatriculé au RSAC de FREJUS sous le numéro 921 526 364
- Type de bien : Local commercial
- Surface : 102 m²
- Localisation : France - provence-alpes-cote-d-azur - Var
- Ville : FREJUS
- Code postal : 83600
- Annonce mise à jour le 18/10/2025





