Vente Local commercial 39100, DOLE france 128 000 €
Descriptif du bien
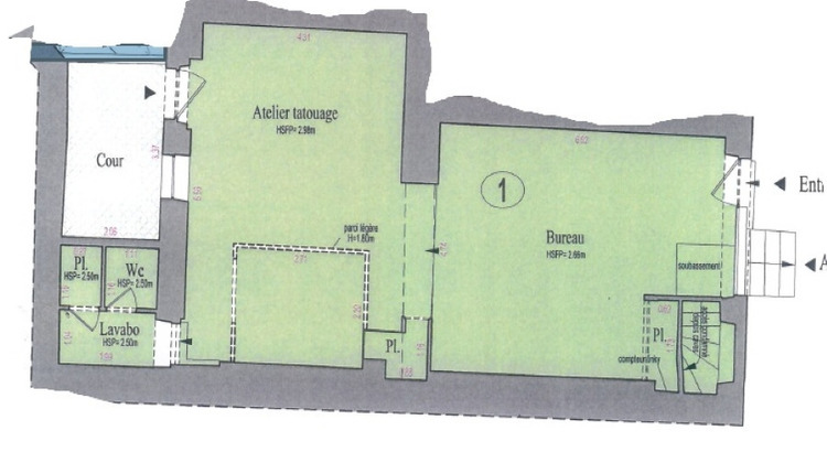
L'agence Bersot Immobilier Dole vous propose à la vente ces murs commerciaux idéalement situés à deux pas de la place Grévy, au coeur de la ville de Dole. Une opportunité rare d'investissement avec un bon rendement locatif garanti grâce à un bail commercial en cours depuis plus de 30 ans. Ce local de 61 m² se compose d'un espace bureau, d'un atelier fonctionnel, ainsi que de sanitaires comprenant WC et lavabo. En bonus, une cour intérieure privative vient compléter le bien, offrant un espace extérieur appréciable et une vraie valeur ajoutée. Le bien est actuellement occupé par un commerce stable et fidèle, générant un loyer mensuel de 750 euros, ce qui représente une rentabilité attractive pour un investisseur à la recherche d'un placement sûr et durable. L'ensemble est en bon état général et bénéficie d'un emplacement stratégique, à proximité immédiate des commodités, transports et du centre-ville animé de Dole. Pour plus de renseignements ou pour organiser une visite, contactez Sandrine KAZANDJI au 06 67 82 06 17. Copropriété de 16 lots - dont 8 lots habitation. (Pas de procédure en cours). Charges annuelles : 720 euros. Sandrine KAZANDJI (EI) Agent Commercial - Numéro RSAC : 841706898 - .
- Type de bien : Local commercial
- DPE : G -> 450 kWh/².an
- Surface : 61 m²
- Localisation : France - Bourgogne-Franche-Comté - Jura
- Ville : DOLE
- Code postal : 39100
- Annonce créée le 10/02/2026

