Vente Local commercial 35510, CESSON-SEVIGNE france 387 760 €
Descriptif du bien
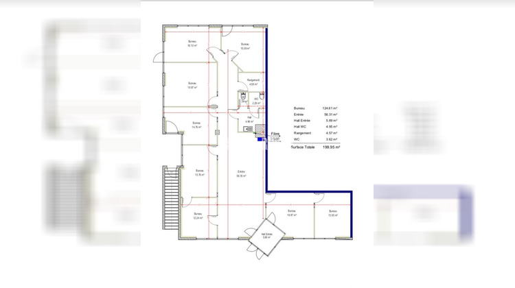
L'Agence Maison Rouge vous propose à LA VENTE une surface de bureaux en RDC d'environ 200 m² au sein de la ZA composée de : - un hall d'entrée de 6 m² - un accueil de 56 m² - 7 bureaux cloisonnés d'une surface totale de 125 m² - un local à rangement de 5 m² - des sanitaires de 8 m² Le tout disposant de 5 places de parking privatives en extérieur. Situation idéale à l'intérieur du périphérique rennais et dans une zone dynamique aux secteurs d'activités variés. Accessibilité SNCF SNCF à 7,6km Bus Bus C6 11 67 à l'arrêt Rigourdière (Cesson-Sévigné) Accès routier Proximité rocade Aéroport Aéroport à 14,2km Métro Beaulieu - Université (METRO-b) Quartier Transport Bus 34, Parking 2, Vélo 2, Taxi 1 Prestations : Accès PMR Baie de Brassage Câblage RJ45 Etablissement recevant du public Fibre optique Nombre de bureaux :7 Type de chauffage :électrique Vous avez des questions sur ce bien ? Je vous invite à me contacter : 06 03 74 14 57, Pierre-Yves AMY, agent commercial Prix FAI : 387 760 euros dont 4.80 % honoraires TTC à la charge de l'acquéreur. Pierre-yves AMY (EI) Agent Commercial - Numéro RSAC : 502685357 - .
- Type de bien : Local commercial
- Surface : 201 m²
- Localisation : France - Bretagne - Ile et Vilaine
- Ville : CESSON-SEVIGNE
- Code postal : 35510
- Annonce créée le 13/01/2026






