Vente Local commercial 11000, CARCASSONNE france 118 500 €
1 / 8
Descriptif du bien
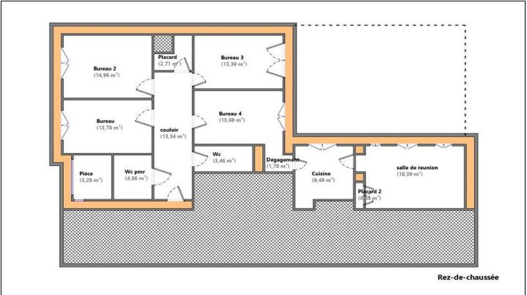
L'agence ERA Cité Carcassonne vous propose une opportunité d'investissement locatif au sein d'un local commercial idéalement situé sur un boulevard à proximité du centre-ville. Actuellement loué à un organisme d'État, ce bien bénéficie d'un bail sécurisé pour une durée de six années supplémentaires. D'une superficie de 114 m², il se compose d'un hall d'entrée, de quatre bureaux, d'une salle de pause, ainsi que d'une salle de réunion. Deux places de parking sécurisées en cour intérieure viennent compléter ce bien. Ce local offre une rentabilité nette de 7,5 %. Pour plus d'informations, n'hésitez pas à contacter votre agence.







