Vente Local commercial 06800, Cagnes-sur-Mer france 623 000 €
Descriptif du bien
A VENDRE Murs commerciaux neufs à Cagnes-sur-Mer
Bergé Immobilier vous propose une belle opportunité d'investissement :Un local commercial en pied d'immeuble, au sein d'un quartier en plein développement.
Les points clés du local :
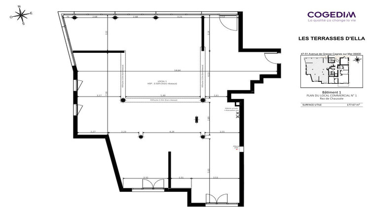
Superficie totale : 178 m²
Très beau linéaire vitrine de+24 m
Local en rez-de-chaussée d'un ensemble immobilier neuf
Projet global sur 13 779 m² comprenant : 219 logements et 2 000 m² de commerces & activités
Un emplacement stratégique :
Avenue très passante : flux de 19 000 véhicules / jour
Stationnement : possibilité d'acquérir 11 à 13 places privatives (17 500 HT / place)
Proximité immédiate de l'autoroute A8
À 10 km de l'aéroport de Nice
À 800 m de la gare de Cagnes-sur-Mer
À 3 km du centre commercial Polygone Riviera
Ville prochainement desservie par le tramway de Nice
Environnement commercial :
Dans un rayon de 1 km, de nombreux commerces déjà installés :Pharmacie, médecins généralistes, institut de beauté, coiffeur, boulangerie, dermatologue, supermarché, etc.
? Livraison prévue : 2ème trimestre 2028
Honoraires en sus : 5% TTC à la charge de l'acquéreur
Contactez nous pour échanger sur votre projet & recevoir le dossier complet.
Non soumis au DPE. Les informations sur les risques auxquels ce bien est exposé sont disponibles sur le site Géorisques : georisques.gouv.fr.
- Type de bien : Local commercial
- Surface : 178 m²
- Localisation : France - provence-alpes-cote-d-azur - Alpes Maritimes
- Ville : Cagnes-sur-Mer
- Code postal : 06800
- Annonce créée le 03/10/2025



