Vente Local commercial 33000, Bordeaux france 390 000 €
Descriptif du bien
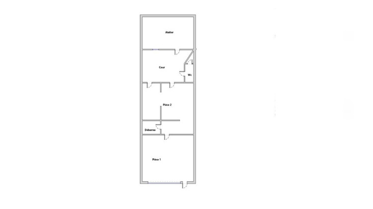
Idéalement situé entre les places Gambetta et Tourny, proche de toutes les commodités et des transports, venez découvrir ces murs commerciaux de 90 m² (105 au sol), avec une cour intérieure de 16 m², un rideau électrique, d'excellents diagnostics et une belle vitrine.
Le local sécurisé est divisé en trois bureaux d'environ 30 m² chacun dont un sur rue, avec des espaces de rangement, un Wc et la cour intérieure, le tout dans une rue de prestige.
Les points forts : l'emplacement, le calme, la cour, le bon état général. Atelier, galerie, bureau, agence, n'hésitez pas à me contacter pour en discuter davantage. Romain Telera 06 70 08 10 75.
Les informations sur les risques auxquels ce bien est exposé sont disponibles sur le site Géorisques : www.georisques.gouv.fr
Prix de vente honoraires d'agence inclus : 390 000 ¤ HT + 4 000 ¤ TVA, soit 394 000 ¤ TTC
Prix de vente hors honoraires d'agence : 370 000 ¤ HT + 0 ¤ TVA, soit 370 000 ¤ TTC
Honoraires d'agence : 20 000 ¤ HT + 4 000 ¤ TVA, soit 24 000 ¤ TTC (6.49 % TTC du prix de vente hors honoraires d'agence)
Honoraires charge acquéreur
Contactez votre conseiller SAFTI : Romain TELERA, Tél. : 06 70 08 10 75, E-mail : romain.telera@safti.fr - EI - Agent commercial immatriculé au RSAC de BORDEAUX sous le numéro 753 962 356.Informations LOI ALUR : Honoraires : 5.41 % TTC charge acquéreur. Prix hors honoraires : 370 000 ¤. (gedeon_26118_33041507)
- Type de bien : Local commercial
- DPE : B - 51 à 90 kWh/².an
- GES : A -< 6 kg eq CO2/².an
- Surface : 90 m²
- Localisation : France - Nouvelle-Aquitaine - Gironde
- Ville : Bordeaux
- Code postal : 33000
- Annonce créée le 16/04/2026




