Vente Local commercial 41000, BLOIS france 428 400 €
Descriptif du bien
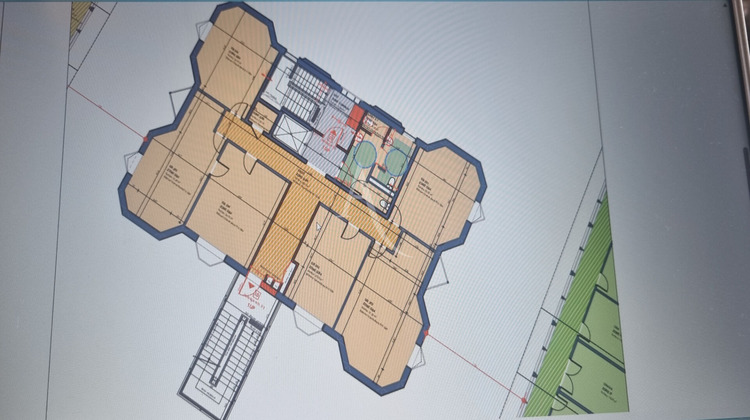
LOCAUX PROFESSIONNELS PÔLE MÉDICAL BLOIS Dans un environnement privilégié et facilement accessible, L'Adresse Immobilier Blois vous propose à la vente des locaux professionnels à usage exclusivement médical, idéalement situés au sein d'un projet dédié aux professions de santé. D'une surface d'environ 197 m², ce local est situé au 1er étage avec ascenseur aux normes PMR, garantissant un accès optimal à tous les patients. Le bien sera entièrement aménagé selon les plans et besoins spécifiques de l'acquéreur, offrant ainsi une parfaite adaptation à votre activité (cabinet médical, paramédical, spécialité, etc.). Les prestations incluent : Cloisonnement sur mesure Isolation complète Installation d'une climatisation réversible Création des sanitaires Pose des revêtements de sol Installation électrique conforme aux normes en vigueur Vous bénéficierez également d'un environnement pratique avec :Stationnement privatif Nombreuses places de parking libre à proximité Ce projet constitue une opportunité rare pour intégrer ou développer votre activité au sein d'un espace moderne, fonctionnel et pensé pour le confort des professionnels de santé et de leur patientèle. Dossier complet et plans sur demande. ref.MOGP428-GB.R+2 (5.00 % honoraires TTC à la charge de l'acquéreur.)
- Type de bien : Local commercial
- Surface : 197 m²
- Localisation : France - centre-val-de-loire - Loir et Cher
- Ville : BLOIS
- Code postal : 41000
- Disponible le 29/01/2027
- Annonce créée le 24/03/2026


