Location Local commercial 34500, BEZIERS france N.C.
Descriptif du bien
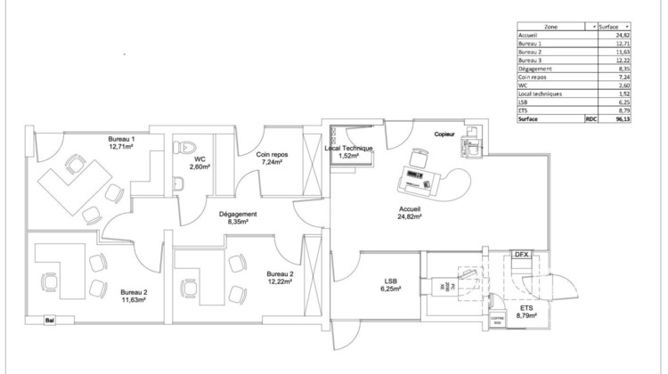
Idéalement situé au sein d'un centre commercial dynamique, ce local commercial de 96 m2 bénéficie d'une excellente visibilité et d'un fort passage, à proximité immédiate d'un Intermarché Super et d'autres commerces de proximité (pharmacie, presse, etc.). Le local, en parfait état, est adapté à de nombreuses activités commerciales ou de services.Toutes activités sont autorisées, sauf celles générant des nuisances sonores ou olfactives. oSuperficie : 96 m2 oLoyer mensuel : 3 667 EUR HT oAccessibilité : parking clientèle, accès PMR oEnvironnement commercial attractif et fréquenté Ce local offre une belle opportunité pour implanter votre activité dans un secteur à fort potentiel commercial. Contactez-nous dès maintenant pour plus d'informations ou organiser une visite. Frais d'agence charge acquéreur : 15% du loyer annuel HT, 6600 ht soit 7920EUR ttc. Youssef Addah Agent Commercial Hérault Tel: 06 74 17 00 18 Inscrit RCS de Montpellier 490 455 284 Côté France, Agence immobilière - Réseau immobilier Franco-Belge. Achat - vente - à vendre - acheter - investir www.cotefranceimmo.fr La présente annonce immobilière a été rédigée sous la responsabilité éditoriale de EI Youssef ADDAHRAOUI, Agent Commercial mandataire en immobilier immatriculé au Registre Spécial des Agents Commerciaux (RSAC) du Tribunal de Commerce de Montpellier sous le numéro 490 455 284 Agent Commercial Hérault Tel: 06 74 17 00 18 , Côté France, Agence immobilière - Réseau immobilier Franco-Belge. Achat - vente - à vendre - acheter - investir *** Référence annonce : 7400 Cette annonce vous est proposée par Youssef Addahraoui - EI - NoRSAC: 490455284, Enregistré à Greffe du tribunal de commerce de Montpellier Côté France Immobilier - Réseau Immobilier Franco Belge International - Des conseillers du Nord au Sud de la France et 4 agences à votre service www.cotefranceimmo.fr - Annonce rédigée et publiée par un Agent Mandataire -





