Vente Local commercial 49240, Avrillé france 148 000 €
Descriptif du bien
A vendre Commune d'Avrillé Quartier Bois du Roy
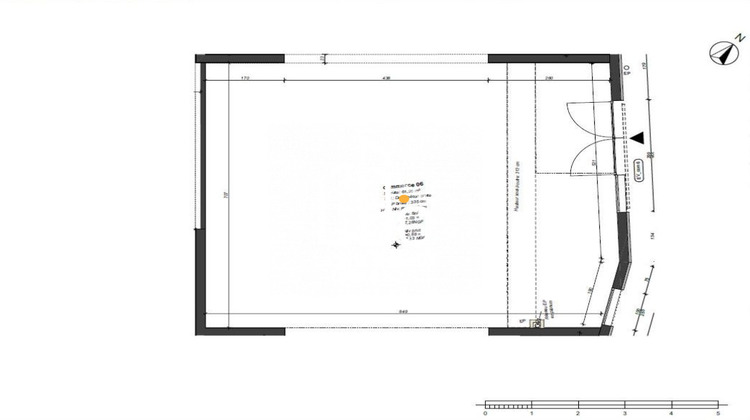
Local commercial d'angle d'environ 60 m² en rez-de-chaussée
avec accès PMR en façade.
La cellule commerciale est brut de béton , fourreaux en attente, huisseries posées.
L'aménagement à prévoir en fonction de l'activité.
L'emplacement est desservi par le tramway ligne A (arrêts Plateau de la Mayenne-Bois du Roy) et par le Bus ligne 7
Idéalement positionné Plateau de la Mayenne à 10 minute du centre-ville d'Angers et à deux pas du centre-ville d'Avrillé, L'emplacement est stratégique dans un environnement résidentiel dense.
Vous souhaitez investir ou implanter votre activité dans un quartier en pleine expansion sur une commune dynamique?
Contactez-nous pour plus d'information.
Conditions de vente :
Prix de vente HT net vendeur 139 000
Honoraires de commercialisation forfaitaire 8 500 HT en sus du prix de vente HT net vendeur à la charge de l'acquéreur.
Honoraires inclus de 6.09% HT à la charge de l'acquéreur. Prix hors honoraires 139 500 HT. Dans une copropriété de 1 lots. Aucune procédure n'est en cours. Non soumis au DPE. Les informations sur les risques auxquels ce bien est exposé sont disponibles sur le site Géorisques : georisques.gouv.fr.
Votre conseiller LOCAUX-BUREAUX-COMMERCES : Nicolas FOULON
Agent commercial (Entreprise individuelle)
RSAC ADC 4401 2025 000 000 873
RCP RCACO-20-016231 GALIAN SMA BTP.
LOCAUX-BUREAUX-COMMERCES 02 55 07 86 35
- Type de bien : Local commercial
- Surface : 60 m²
- Localisation : France - pays-de-la-loire - Maine et Loire
- Ville : Avrillé
- Code postal : 49240
- Disponible le 01/01/2026
- Annonce créée le 24/04/2026





