Vente Local commercial 49240, Avrillé france 444 140 €
Descriptif du bien
A vendre local commercial d'angle Les Hauts Saint-Aubin
Commune d'Avrillé Quartier Bois du Roy
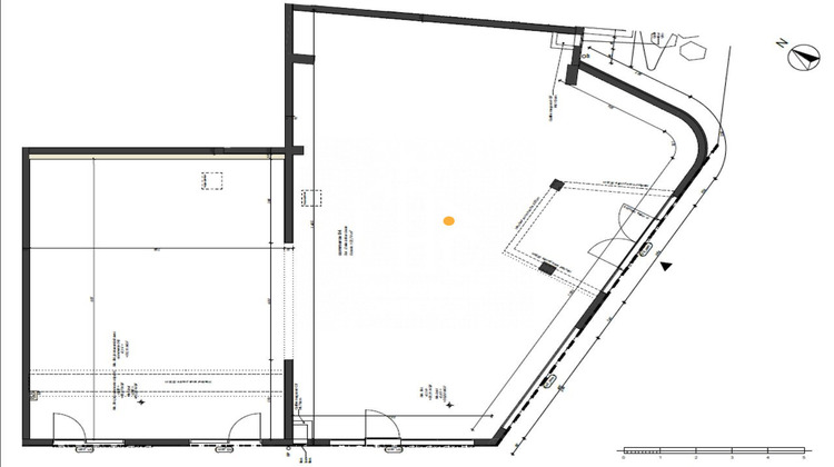
Local commercial d'angle d'environ 190 m² en rez-de-chaussée
avec linéaire vitrine de 16 mètres et plusieurs accès en façade compatibles PMR.
La cellule commerciale est brut de béton , fourreaux en attente, huisseries posées.
L'aménagement à prévoir en fonction de l'activité.
Idéalement positionné dans le quartier Bois du Roy, à deux pas du centre-ville d'Avrillé, à 10 min en voiture du centre-ville d'Angers, l'emplacement s'inscrit dans un environnement résidentiel dense avec une zone de chalandise captive de près de 15 000 habitants.
Le secteur est desservi par le tramway ligne A (arrêts Plateau de la Mayenne et/ou Bois du Roy) ainsi que le Bus ligne 7.
Vous souhaitez investir ou implanter votre activité dans un quartier en pleine expansion sur le Territoire Angevin ?
Contactez-nous pour plus d'information.
Conditions de vente :
Prix de vente HT net vendeur 419 000
Honoraires de commercialisation à la charge de l'acquéreur 6% HT en sus du prix de vente HT net vendeur, soit 25 140 HT.
Honoraires inclus de 6% HT à la charge de l'acquéreur. Prix hors honoraires 419 000 HT. Dans une copropriété de 1 lots. Aucune procédure n'est en cours. Non soumis au DPE. Les informations sur les risques auxquels ce bien est exposé sont disponibles sur le site Géorisques : georisques.gouv.fr.
Votre conseiller LOCAUX-BUREAUX-COMMERCES : Nicolas FOULON
Agent commercial (Entreprise individuelle)
RSAC ADC 4401 2025 000 000 873
RCP RCACO-20-016231 GALIAN SMA BTP.
LOCAUX-BUREAUX-COMMERCES 02 55 07 86 35
- Type de bien : Local commercial
- Surface : 190 m²
- Localisation : France - pays-de-la-loire - Maine et Loire
- Ville : Avrillé
- Code postal : 49240
- Disponible le 01/01/2026
- Annonce créée le 24/04/2026



