Vente Local commercial 74000, Annecy france 455 000 €
Descriptif du bien
Idéalement situé au coeur du très recherché triangle d'or d'Annecy, à proximité immédiate du lac et du secteur emblématique des Nouvelles Galeries, ce local commercial neuf bénéficie d'un emplacement stratégique de premier ordre.
Implanté à un carrefour particulièrement passant, il profite d'une visibilité exceptionnelle ainsi que d'un flux constant, aussi bien piéton qu'automobile. Cette implantation garantit une forte exposition pour toute activité souhaitant s'inscrire dans un environnement urbain dynamique et à forte attractivité commerciale.
Le bien s'intègre au sein d'un programme immobilier neuf porté par un promoteur reconnu pour la qualité de ses réalisations, offrant une architecture soignée et une véritable valeur patrimoniale sur le long terme.
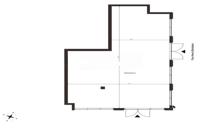
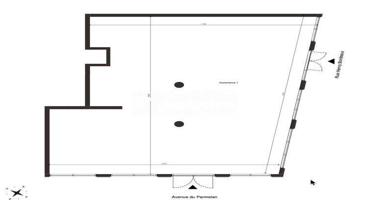
Le local est livré brut de béton, permettant une liberté totale d'aménagement selon votre concept. Les fluides sont en attente, avec notamment l'alimentation en eau, les évacuations, l'électricité ainsi qu'une gaine de ventilation en toiture, facilitant l'installation de nombreuses activités. La hauteur sous plafond permet d'envisager un aménagement qualitatif et des volumes agréables pour accueillir votre clientèle.
Surfaces disponibles :
- Commerce 1 : 158,29 m²
- Commerce 2 : 71,46 m²
Ces locaux conviendront parfaitement à une activité de commerce, de service ou à une enseigne souhaitant s'implanter dans un secteur premium, bénéficiant d'une excellente image et d'un fort pouvoir d'attractivité. Leur positionnement en coeur de ville, à proximité immédiate du lac, en fait une adresse particulièrement recherchée, aussi bien par les enseignes locales que nationales.
La combinaison entre emplacement stratégique, visibilité, accessibilité et qualité du programme en fait une opportunité rare sur le marché annécien, que ce soit pour une implantation ou un investissement à forte valeur patrimoniale.
Prix de vente :
- Lot 1 (158,29 m²) : 1 005 000 HT
- Lot 2 (71,46 m²) : 455 000 HT
Disponibilité : livraison prévisionnelle : 4? trimestre 2027
Contact : nicolas.parroche@avinim-brokers.fr
AVINIM RESEAU BROKERS est le premier cabinet immobilier d'entreprise structuré en réseau de mandataires. Nous maillons avec notre équipe de 80 Brokers une grande partie du territoire national pour accompagner nos entreprises clientes dans leurs recherches de commerces, bureaux, locaux d'activités, immeubles et fonciers.
www.reseau-brokers.com
Honoraires à la charge du vendeur. DPE en cours. Les informations sur les risques auxquels ce bien est exposé sont disponibles sur le site Géorisques : georisques.gouv.fr.
Votre conseiller AVINIM RESEAU BROKERS : Nicolas PARROCHE
Agent commercial (Entreprise individuelle)
RSAC 478800212
RCP 7953190/S17093745
- Type de bien : Local commercial
- Surface : 71 m²
- Localisation : France - Auvergne-Rhône-Alpes - Savoie (Haute)
- Ville : Annecy
- Code postal : 74000
- Annonce créée le 24/04/2026



