Vente Local commercial 74000, Annecy france 585 000 €
Descriptif du bien
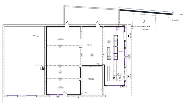
À VENDRE PLATEAU LIBRE 211 m² AXE HYPER PASSANT SÉVRIER (74)
Plateau libre de 211 m² situé sur l'axe le plus passant de Sévrier, offrant une visibilité exceptionnelle et un fort potentiel d'exploitation ou de revalorisation.Anciennement une boulangerie, ce local vide se prête à de nombreux projets, aussi bien professionnels que patrimoniaux.
Caractéristiques
- Surface totale : 211 m²
- Local libre de toute occupation
- 7 mètres linéaires de vitrine
- Places de stationnement devant le local
- Extraction existante
- Accès direct et visibilité maximale
Usages possibles (sous réserve d'autorisations)
- Découpe en logements (marchands de biens / investisseurs)
- Activité artisanale (boulangerie, traiteur, fleuriste, menuiserie,
)
- Bureaux / professions libérales
- Stockage / logistique urbaine
- Showroom ou commerce de proximité
Les + du bien
- Emplacement premium sur axe hyper passant
- Plateau modulable offrant de multiples scénarios
- Proximité lac
Sévrier (74) secteur recherché du bassin annécien, forte demande résidentielle et professionnelle.
Un bien aux multiples possibilités, à découvrir rapidement.
Dossier complet et visites sur demande.
Honoraires inclus de 6.36% à la charge de l'acquéreur. Prix hors honoraires 550 000 . Dans une copropriété de 5 lots. Quote-part moyenne du budget prévisionnel 600 /an. Aucune procédure n'est en cours. DPE en cours. Les informations sur les risques auxquels ce bien est exposé sont disponibles sur le site Géorisques : georisques.gouv.fr.
Votre conseiller eXp Realty (Team Aix'Plore Immo) : Xavier RICH
Agent commercial (Entreprise individuelle)
RSAC 494 864 648 CHAMBERY
- Type de bien : Local commercial
- Surface : 211 m²
- Localisation : France - Auvergne-Rhône-Alpes - Savoie (Haute)
- Ville : Annecy
- Code postal : 74000
- Annonce mise à jour le 13/03/2026




