Vente Local commercial 49100, Angers france 303 160 €
Descriptif du bien
Au Nord de la commune d'ANGERS
Quartier des HAUTS SAINT AUBIN sur une artère très fréquentée en angle avec une belle visibilité .
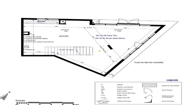
Local professionnel d'angle d'une surface utile de 143 m2 environ sur deux niveaux :
Rez-de-chaussée : 61 m2 environ
R+1 : 82 m2 environ
Destination de la cellule : Activités de services et/ou de bureaux
Accès en voiture par l'autoroute A11, parking relais ELISABETH BOSELLI à 3 minutes à pieds.
En transport le tramway Ligne A Station ' TERRA BOTANICA' et le bus Ligne 34 sont à proximité piétonne.
Environnement : commerces, services et habitations.
De nombreuses structures sont à deux pas du local :
Le PARC TERRA BOTANICA, la PISCINE AQUA VITA, MAISON DE L'ARCHITECTURE DES TERRITOIRES ET DU PAYSAGE, LE CENTRE TECHNIQUE DES TRANSPORTS RAYMOND-PEYRON, LA CASERNE DU 6ÉME REGIMENT DU GENIE.
Conditions de vente :
La cellule est brut de béton, fourreaux en attente, huisserie posée.
Prix de vente net vendeur HT : 286 000
Honoraires de commercialisation à la charge de l'acquéreur : 6% HT du prix de vente HT, soit 17 160 HT, TVA en sus au taux en vigueur
Pour toutes informations complémentaires contactez l'agence au 0255078635
Honoraires inclus de 6% HT à la charge de l'acquéreur. Prix hors honoraires 286 000 HT. Dans une copropriété de 2 lots. Aucune procédure n'est en cours. Non soumis au DPE. Les informations sur les risques auxquels ce bien est exposé sont disponibles sur le site Géorisques : georisques.gouv.fr.
Votre conseiller LOCAUX-BUREAUX-COMMERCES : Nicolas FOULON
Agent commercial (Entreprise individuelle)
RSAC ADC 4401 2025 000 000 873
RCP RCACO-20-016231 GALIAN SMA BTP.
LOCAUX-BUREAUX-COMMERCES 02 55 07 86 35
- Type de bien : Local commercial
- Surface : 143 m²
- Localisation : France - pays-de-la-loire - Maine et Loire
- Ville : Angers
- Code postal : 49100
- Disponible le 26/02/2026
- Annonce créée le 06/03/2026





