Vente Local commercial 30100, ALES france 295 000 €
Descriptif du bien
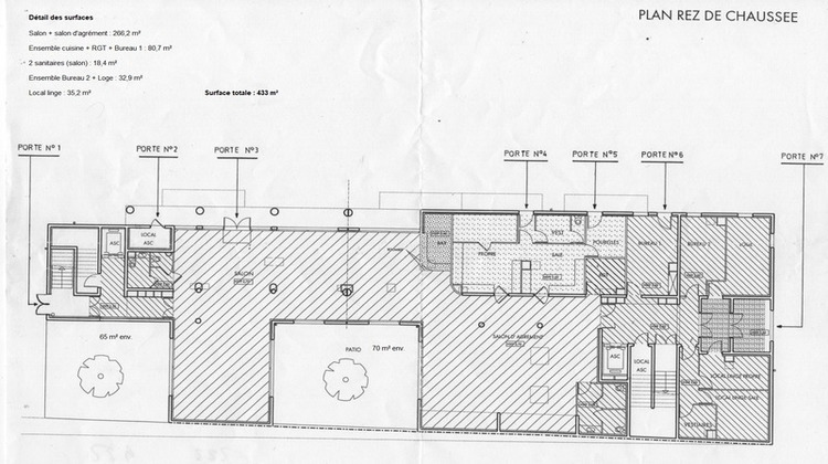
Dpt Gard (30), ALES à vendre idéal investisseur, local professionnel 434m² environ avec deux patios au RDC et à plain pied dans une très belle résidence à l'angle de la rue Jean julien Trelis et du boulevard Gambetta, proche clinique Bonnefon. les locaux spacieux et lumineux sont définis comme suit: espace principal (Salon + salon d'agrément) de 266,2m², cuisine et annexes de 80,7m², 2 sanitaires pour un total de 18,4m², ensemble de bureau + Loge: 32,9m² lingerie de 35,2m².. acces PMR aux normes, climatisations réversible, évacuation hotte cuisines présentes et normes incendie OK. locaux divisibles selon projet. Prix : 295000 euros frais d'agence et taxes inclus. Nombre de lots de la copropriété : 76, Montant moyen annuel de la quote-part de charges (budget prévisionnel) : 2449€ soit 204€ par mois. Les honoraires sont à la charge du vendeur. Les informations sur les risques auxquels ce bien est exposé sont disponibles sur le site Géorisques : www. georisques. gouv. fr. Réseau Immobilier CAPIFRANCE - Votre agent commercial (RSAC N°848 737 466 - Greffe de NIMES) Rémy TINNIRELLO Entrepreneur Individuel 06 42 01 59 28 - Réf.891085





