Vente Local commercial 95460, Ézanville france 1 795 500 €
Descriptif du bien
Avinim Réseau-Brokers vous propose au sein de la ZAC Innovespace à Ezanville (95), plusieurs surfaces neuves d'activités, de bureaux et de locaux commerciaux. de taille variable (entre 200 m² et 3.000 m²) adaptable en fonction des besoins des utilisateurs
Les locaux sont adaptés à tous types d'entreprise, conçus pour réduire les consommations de fluides, avec des places de stationnement prévues en nombre suffisant.
Une documentation complète sera envoyée sur demande (activités polluantes non autorisées).
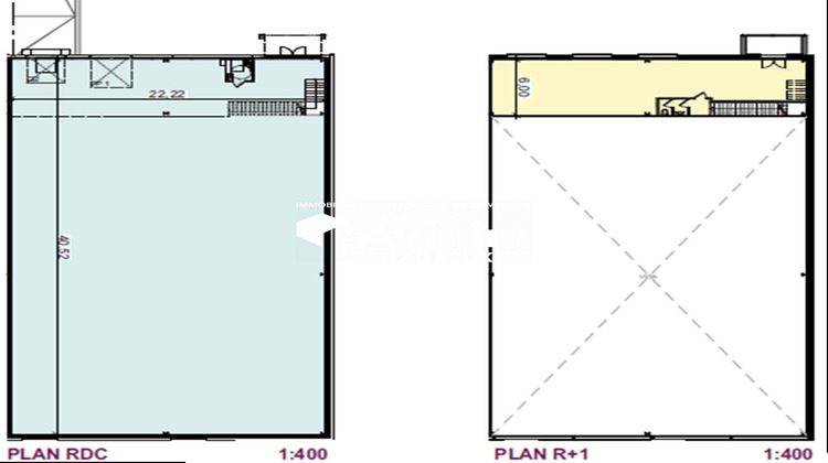
Lot proposé: cellule d'activités de 1026 m² livrée aménagée (date de livraison: T2 2027)
* Caractéristiques:
- RDC 900 m²; activités / stockage, wc
- R+1 126 m² : bureaux, wc.
- Hauteur libre 7,50 m en RDC
- Hauteur libre 4 m sous mezzanine
- Porte sectionnelle de 4,5 m x 4 m: 1
- Quai niveleur (2,80 m x 3 m)
- Charge au sol: 3T /m²
- Sanitaires PMR carrelés
- Electricité: tarif jaune
- Mezzanine aménagée en bureaux
* Accessibilité:
- Excellente en façade de la RD 301
- Francilienne à 5 mn
- Aéroport de Roissy-CDG à 17 mn
- Cergy-Pontoise à 19 mn
- Beauvais: 35 mn
- Paris: 30 mn
* Conditions financières pour la cellule de 1.026 m²:
- Prix HT: 1.795.500 euros
- Honoraires de commercialisation à la charge de l'acquéreur: 3 % HT du prix HT
Pour tous complément d'information, merci de me contacter directement au 06 63 87 06 45.
AVINIM RESEAU BROKERS est le premier cabinet immobilier d'entreprise structuré en réseau de mandataires. Nous maillons avec notre équipe de 80 Brokers une grande partie du territoire national pour accompagner nos entreprises clientes dans leurs recherches de commerces, bureaux, locaux d'activités, immeubles et fonciers.
www.reseau-brokers.com
DPE vierge. Les informations sur les risques auxquels ce bien est exposé sont disponibles sur le site Géorisques : georisques.gouv.fr.
Votre conseiller AVINIM RESEAU BROKERS : Patrick CUETOR
Agent commercial (Entreprise individuelle)
RSAC 912.919.974
RCP 7953190/S17507717
- Type de bien : Local commercial
- Surface : 1026 m²
- Localisation : France - ile-de-france - Val d'oise
- Ville : Ézanville
- Code postal : 95460
- Annonce créée le 06/02/2026




