Vente Immeuble 72320, VIBRAYE france 530 000 €
Descriptif du bien
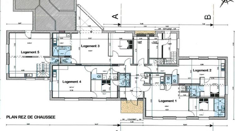
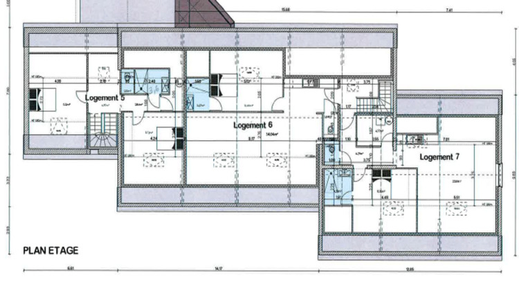
VIBRAYE. Immeuble de rapport récent entièrement loué, offrant une rentabilité immédiate et sécurisée. comprenant : 7 appartements (6 F2 et 1 F3 duplex) avec 2 places de parking par appartement. Chaque logement offre : cuisine aménagée et équipée, chambre avec dressing, salle d'eau moderne, WC indépendant, chauffage individuel et cumulus électrique. Appartements lumineux et très fonctionnels. Le F3 duplex bénéficie d'une entrée indépendante. L'ensemble offre une excellente opportunité d'investissement avec de bonnes perspectives de rentabilité et peu de charges. Atouts : immeuble propre et entretenu, stationnements privatifs, équipements modernes, facilité de location. (3.92 % honoraires TTC à la charge de l'acquéreur.)
- Type de bien : Immeuble
- DPE : D - 151 à 230 kWh/².an
- GES : B - 6 à 10 kg eq CO2/².an
- Surface : 392 m²
- Localisation : France - pays-de-la-loire - Sarthe
- Ville : VIBRAYE
- Code postal : 72320
- Annonce créée le 02/12/2025





