Vente Immeuble 78000, VERSAILLES france 2 335 000 €
Descriptif du bien
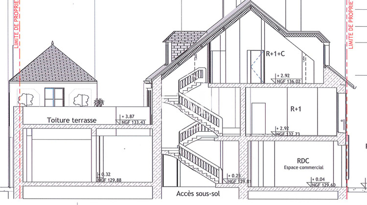
Le cabinet mansart vous propose : Immeuble de caractère à réinventer d'une superficie total de 670 m² et 478 m² de surface privative sur une adresse d'exception. Idéalement situé sur la très recherchée rue de Montreuil, au coeur d'un quartier. Le bien est composé : d'une vaste surface commerciale en rez-de-chaussée, offrant de multiples possibilités (Boutique, Boulangerie, restauration ou profession libérale) Surface commerciale : 270,23 m2 Deux grands appartements à créer aux étages, avec de beaux volumes, hauteurs sous plafond et potentiel architectural remarquable, parquet Cheminée et TERRASSE. Surface appartement de 106,86 m² avec terrasse de 62,67 m² au 1er étage et Surface appartement de 119,67 m² au 2? étage. IDÉAL ACHAT POUR INVESTISSEMENT LOYER ANNUEL POTENTIEL 150 000 euros
- Type de bien : Immeuble
- Surface : 640 m²
- Localisation : France - ile-de-france - Yvelines
- Ville : VERSAILLES
- Code postal : 78000
- Annonce créée le 23/09/2025







