Vente Immeuble 10000, Troyes france 390 000 €
Descriptif du bien
Cet immeuble des années 50, idéalement situé en lisière du Bouchon de Champagne et à proximité immédiate de l'Institut Universitaire des Métiers du Patrimoine (IUMP) et de l'École Supérieure de Design de Troyes, représente une opportunité rare pour les investisseurs. Actuellement utilisé comme bureaux, il a bénéficié d'un permis de transformation pour être réhabilité en 14 logements collectifs modernes, de types T2 à T5, parfaitement adaptés aux étudiants et jeunes actifs.
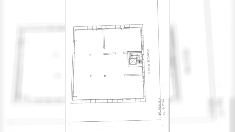
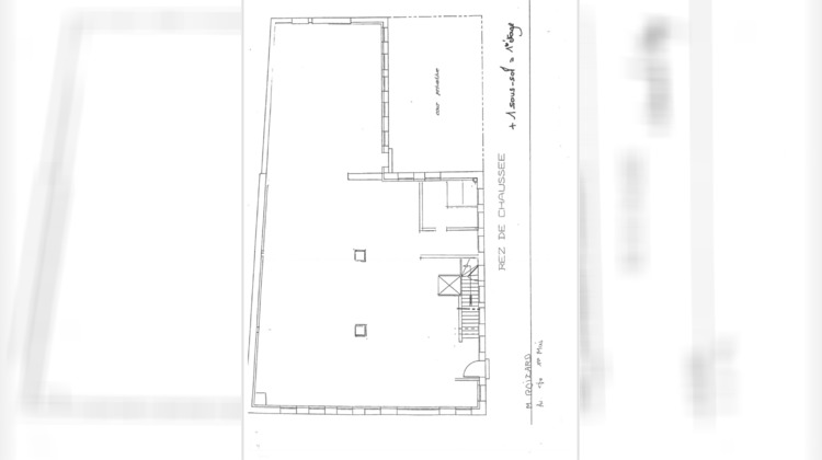
Implanté sur une parcelle de 1 895 m2, cet immeuble offre une surface totale d'environ 700 m2, dont 630,98 m2 habitables. Il se compose de deux étages sur rez-de-chaussée, complété par un sous-sol et un grenier, offrant ainsi un fort potentiel de valorisation. Il dispose également de 3 garages et d'un local transformateur.
Libre, d'une surface totale de 688.12 m2 avec le grenier et 883.11 m2 avec le sous sol . ce bâtiment se compose : Sous-sol : 195. m2 Rez-de-chaussée : Entrée, surface de stockage (transformation possible), une pièce : 216.43 m2 Premier étage : Palier desservant 6 bureaux, cuisine, wc. (Transformation possible) : 175.73 M2 2ème étage : salle de réunion, espace cuisine, réserve (Transformation possible) / 196 m2 3ème étage : grenier aménageable : 100 m2 Chauffage :PAC AIR/AIR Chauffe eau standard à accumulation VMC
L'emplacement est un atout majeur : à seulement 250 mètres des transports en commun et à proximité immédiate de toutes les commodités. Ce quartier dynamique garantit une forte demande locative et un rendement attractif.
Ce projet représente une véritable opportunité d'investissement, alliant emplacement stratégique, forte rentabilité et potentiel patrimonial.
Les informations relatives aux risques auxquels ce bien est exposé sont disponibles sur le site Géorisques : https://www.georisques.gouv.fr/
Performances énergétiques :
DPE : D (176)
GES : B (5)
Estimation des coûts annuels en énergie pour un usage standard : entre 1256EUR et 1700EUR à partir du 13/09/2024
Mandat : 229
Prix de vente : 390 000 EUR FAI
Taxe foncière : 10 251 EUR
Honoraires à la charge du vendeur.





