Vente Immeuble 69170, Tarare france 400 000 €
Descriptif du bien
RARE SUR TARARE, Hyper centre
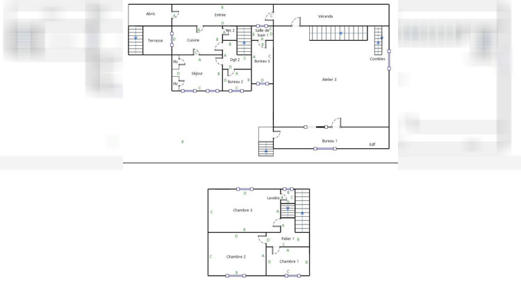
La Première Agence vous invite à découvrir un tènement immobilier constitué de :
Locaux - ateliers d'une surface total de 520 m² environ avec stationnement
+ Maison d'habitation de 105 m² à réhabiliter
+ Terrain constructible de 650 m²
Les atouts:
- Hyper centre
-De nombreuses possibilités d'aménagement
- Grands espaces pour du stockage
- Terrain plat
- Stationnement
Idéal pour artisan, professionnel, restaurateur, professionnel de santé
N'hésitez pas à nous contacter pour plus de renseignements : Justine DUPERRON au 06 67 07 34 71 ou Pierre TARDY au 06 89 87 37 25
La première agence c'est tout une équipe pour vous accompagner dans vos projets !!!
Honoraires à la charge du vendeur. Non soumis au DPE. Les informations sur les risques auxquels ce bien est exposé sont disponibles sur le site Géorisques : georisques.gouv.fr.
Votre conseiller La première Agence : Pierre Tardy
Agent commercial (Entreprise individuelle)
RSAC 879 684 504
- Type de bien : Immeuble
- Surface : 620 m²
- Localisation : France - Auvergne-Rhône-Alpes - Rhône
- Ville : Tarare
- Code postal : 69170
- Annonce créée le 18/07/2025




