Vente Immeuble 33400, TALENCE france 661 500 €
Descriptif du bien
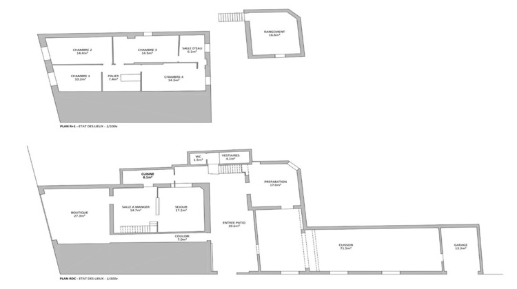
A Talence, ville d'étudiant, agglomération de Bordeaux avec tram et commerces de proximité, venez découvrir ce beau potentiel pour cette belle surface de 285 m² à rénover. Ce bien de caractère est composé au rez-de-chaussée : -D'un grand local de 72 m² avec une grande vitrine (bonne visibilité commerciale) composé de plusieurs pièces, coin cuisine, Wc, arrière boutique. -Au 1er étage : Vous trouverez plusieurs pièces, pour son logement de fonction T3, d'une superficie de 67 m² avec salle d'eau. Un accès indépendant à l'arrière du 1er bâtiment vous proposera au rez-de-chaussée : -Un plateau d'une surface de 74 m² pouvant laisser libre recours à votre imagination ou apporter une superficie supplémentaire au local existant. Egalement au rez-de-chaussée, en continuité des superficies précédentes, avec une entrée indépendante, vous trouverez : -Un plateau de 71.5 m² avec une belle hauteur sous plafond et son garage indépendant. Infos complémentaires : -Des travaux seront à prévoir. -Un seul compteur.
- Type de bien : Immeuble
- DPE : G -> 450 kWh/².an
- GES : C - 11 à 20 kg eq CO2/².an
- Surface : 285 m²
- Localisation : France - Nouvelle-Aquitaine - Gironde
- Ville : TALENCE
- Code postal : 33400
- Annonce créée le 22/04/2025







