Vente Immeuble 69250, POLEYMIEUX AU MONT D OR france 1 010 000 €
Descriptif du bien
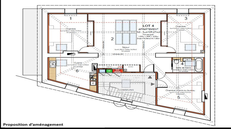
Situé à Poleymieux-au-Mont-d'Or, au cœur des Monts d'Or, cet immeuble bénéficie d'un environnement résidentiel recherché, alliant calme, verdure et proximité immédiate de Lyon. Un jardin partagé se trouve en face du bâtiment, apportant un cadre de vie agréable et qualitatif. Au 33 route de la Roche, Maison Laroche est un immeuble ancien de caractère, actuellement en réhabilitation, offrant un fort potentiel de valorisation. L'ensemble développe 4 lots indépendants, répartis sur trois niveaux, pour une surface globale d'environ 370 m². L'immeuble est proposé avec : • des charges futures faibles (peu d'espaces communs), • des réseaux individualisés (eau, électricité, fibre), • des plateaux libres à aménager, permettant une grande souplesse de projet. La composition est la suivante : • Rez-de-chaussée : un plateau de 88 m² environ, idéal pour habitation ou usage professionnel discret (bureaux, cabinet médical ou paramédical, sous réserve d'autorisations). • 1er étage : un plateau d'environ 113 m² avec balcon. • 2e étage : un plateau d'environ 114 m² avec vue dégagée. • Dernier étage : un plateau sous combles d'environ 115 m², offrant un fort cachet avec poutres apparentes, volumes mansardés et verrière, apportant une luminosité remarquable. Un projet d'aménagement peut être proposé en complément, avec accompagnement sur les plans et le budget. 8 places de stationnement extérieures sont disponibles sur l'opération, au prix de 5 000 € TTC par place. Les honoraires sont à la charge du vendeur. Les informations sur les risques auxquels ce bien est exposé sont disponibles sur le site Géorisques : www. georisques. gouv. fr. Réseau Immobilier CAPIFRANCE - Votre agent commercial (RSAC N°503 204 471 - Greffe de BOURG EN BRESSE) Georges CANDELIER Entrepreneur Individuel 06 61 45 88 35 - Réf.936585
- Type de bien : Immeuble
- Surface : 371 m²
- Localisation : France - Auvergne-Rhône-Alpes - Rhône
- Ville : POLEYMIEUX AU MONT D OR
- Code postal : 69250
- Annonce créée le 17/01/2026




