Vente Immeuble 66000, Perpignan france 295 000 €
Descriptif du bien
Iad France - Vanessa Irain vous propose : * PERPIGNAN SAINT MARTIN *
Immeuble de rapport comprenant :
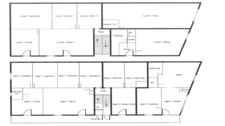
- Rez-de-chaussée : 4 locaux commerciaux de tous libres de toutes occupations
* 45 m² avec espace cuisine et wc séparé accessible PMR - pas de travaux - rideau métallique
proposé à la location au prix de 500e HT.
* 46 m²
* 37 m²
* 36 m² - dispose d'un wc séparé
Ils nécessite des travaux de rafraichissement mais ils peuvent aussi être transformés en appartements.
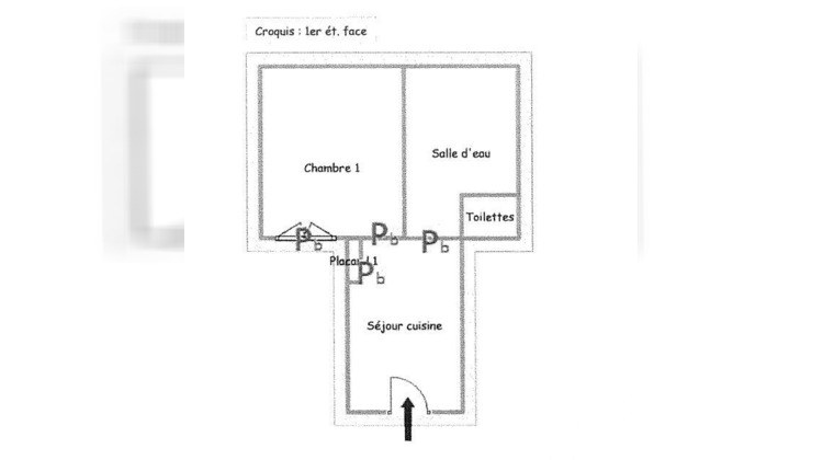
- A l'étage 3 appartements loués
* T5 de 82 m² loué 700 + 30e - depuis 2023
* T2 de 40 m² environ loué 400 + 30e - depuis 2023
* T2 de 40 m² environ loué 200e - depuis 04 / 1994
Taxe foncière : 3300¤
Si l'ensemble est loué pour un revenu annuel de 32000e, vous pouvez espérer une rentabilité global de 10% brut.
Honoraires d'agence à la charge du vendeur.
Information d'affichage énergétique sur ce bien : classe ENERGIE F indice 391 et classe CLIMAT C indice 12. Les informations sur les risques auxquels ce bien est exposé, y compris l'obligation légale de débroussaillement, sont disponibles sur le site Géorisques : http://www.georisques.gouv.fr.
La présente annonce immobilière a été rédigée sous la responsabilité éditoriale de Mme Vanessa Irain mandataire indépendant en immobilier (sans détention de fonds), agent commercial de la SAS I@D France immatriculé au RSAC de PERPIGNAN sous le numéro 843401738, titulaire de la carte de démarchage immobilier pour le compte de la société I@D France SAS.Informations LOI ALUR : Honoraires charge vendeur. (gedeon_6727_32869422)
- Type de bien : Immeuble
- DPE : F - 331 à 450 kWh/².an
- GES : C - 11 à 20 kg eq CO2/².an
- Surface : 300 m²
- Localisation : France - Occitanie - Pyrénées-Orientales
- Ville : Perpignan
- Code postal : 66000
- Annonce créée le 16/04/2026




