Vente Immeuble 66000, Perpignan france 295 000 €
Descriptif du bien
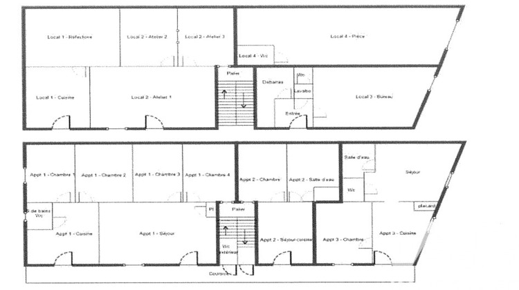
Iad France - Vanessa Irain vous propose : * PERPIGNAN SAINT MARTIN * Immeuble de rapport comprenant : - Rez-de-chaussée : 4 locaux commerciaux de tous libres de toutes occupations * 45 m² avec espace cuisine et wc séparé accessible PMR - pas de travaux - rideau métallique proposé à la location au prix de 500e HT. * 46 m² * 37 m² * 36 m² - dispose d'un wc séparéIls nécessite des travaux de rafraichissement mais ils peuvent aussi être transformés en appartements. - A l'étage 3 appartements loués * T5 de 82 m² loué 700 + 30e - depuis 2023 * T2 de 40 m² environ loué 400 + 30e - depuis 2023 * T2 de 40 m² environ loué 200e - depuis 04 / 1994Taxe foncière : 3300¤ Si l'ensemble est loué pour un revenu annuel de 32000e, vous pouvez espérer une rentabilité global de 10% brut. Honoraires d'agence à la charge du vendeur. Bien non soumis au DPE. Les informations sur les risques auxquels ce bien est exposé, y compris l'obligation légale de débroussaillement, sont disponibles sur le site Géorisques : http://www.georisques.gouv.fr.La présente annonce immobilière a été rédigée sous la responsabilité éditoriale de Mme Vanessa Irain mandataire indépendant en immobilier (sans détention de fonds), agent commercial de la SAS I@D France immatriculé au RSAC de PERPIGNAN sous le numéro 843401738, titulaire de la carte de démarchage immobilier pour le compte de la société I@D France SAS.Informations LOI ALUR : Honoraires charge vendeur. (gedeon_6727_32869422)
- Type de bien : Immeuble
- Surface : 300 m²
- Localisation : France - Occitanie - Pyrénées-Orientales
- Ville : Perpignan
- Code postal : 66000
- Annonce créée le 19/03/2026

