Vente Immeuble 75116, PARIS 16 france 20 500 000 €
Descriptif du bien
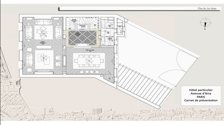
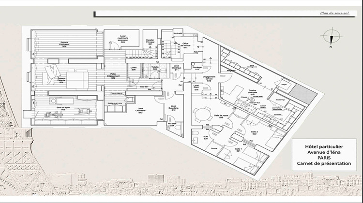
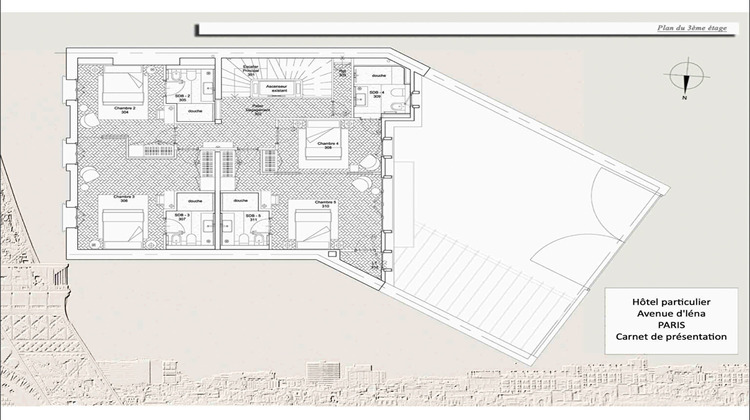
Hotel Particulier - Paris XVI Cet hôtel particulier du début du XXème siècle, à la façade en pierre de taille finement sculptée, offre 614 m² sur cinq niveaux, alliant charme classique et confort moderne. Le rez-de-chaussée comprend une entrée élégante, un salon privé, un bureau, une cuisine de service et une cour privative avec stationnement. Le premier étage accueille un double séjour et une salle à manger raffinée, tandis que le deuxième étage abrite la suite parentale avec salon et salle de bains en marbre. Le troisième étage offre quatre suites invitées avec salles d'eau, et le sous-sol propose un espace avec possibilité d'aménager un spa et une salle de sport, une cuisine professionnelle, une buanderie et un logement pour le personnel. Rénové avec des matériaux nobles et doté de domotique de pointe et de fenêtres blindées, cet hôtel particulier conjugue élégance parisienne et confort contemporain. Contact: Romy 06.34.53.20.51 (5.13 % honoraires TTC à la charge de l'acquéreur.)
- Type de bien : Immeuble
- DPE : C - 91 à 150 kWh/².an
- GES : C - 11 à 20 kg eq CO2/².an
- Surface : 614 m²
- Localisation : France - ile-de-france - Paris
- Ville : PARIS 16
- Code postal : 75116
- Annonce créée le 28/10/2025









