Vente Immeuble 59160, Lille france 499 900 €
Descriptif du bien
*** Lomme / proximité métro / BOURG ***
Immeuble de rapport avec fort potentiel
Idéalement situé, cet immeuble de rapport est composé de plusieurs lots, offrant une belle opportunité d'investissement :
Rez-de-chaussée : Appartement F3 71 m², avec cour privative et dépendance. avec accès garage directement
DPE 245/53
CONSO 1200 /1660 (en E)
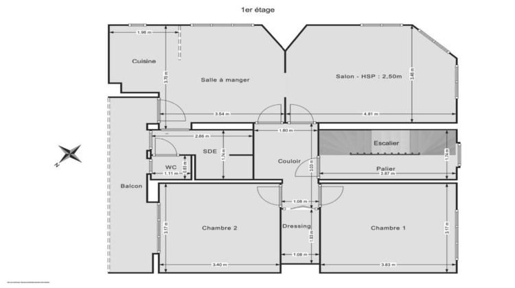
1er étage : Appartement F3 65 m², avec balcon.
DPE 264/57
CONSO 1180 /1640 (en E)
2e étage : Appartement F3 65 m², avec balcon.
DPE 373/81
CONSO 1590 /2190 (en F)
les +
Combles aménageables : Un espace supplémentaire à exploiter selon vos projets.
Annexes : 3 caves et 3 garages .
Confort et indépendance Chaque appartement est équipé de sa propre chaudière gaz et de son propre compteur électrique et eau , garantissant une gestion autonome pour chaque lot.Taxe foncière : 2 900 .
Immeuble vendu libre, à l'exception de 2 garages actuellement loués, offrant un revenu locatif immédiat.
Une opportunité rare à saisir pour un projet d'investissement ou d'habitation !
Contactez nous dès maintenant pour plus d'informations ou pour organiser une visite.
Honoraires inclus de 4.15% à la charge de l'acquéreur. Prix hors honoraires 480 000 . Classe énergie E, Classe climat E Montant moyen estimé des dépenses annuelles d'énergie pour un usage standard, établi à partir des prix de l'énergie de l'année 2021 : entre 1200.00 et 1660.00 . Les informations sur les risques auxquels ce bien est exposé sont disponibles sur le site Géorisques : georisques.gouv.fr.
- Type de bien : Immeuble
- DPE : E - 231 à 330 kWh/².an
- GES : E - 36 à 55 kg eq CO2/².an
- Surface : 210 m²
- Localisation : France - Hauts-de-France - Nord
- Ville : Lille
- Code postal : 59160
- Annonce créée le 31/01/2025




