Vente Immeuble 83420, La Croix-Valmer france 2 600 000 €
Descriptif du bien
En vente locaux commerciaux et appartements dans la Zone d'Activité du Gourbenet à La Croix Valmer.
En Exclusivité.
Situé au coeur d'une zone d'activité dynamique du Golfe de Saint-Tropez, ce bâtiment de 10 pièces à usage commercial et résidentiel offre un excellent rendement locatif et un potentiel de valorisation supplémentaire.
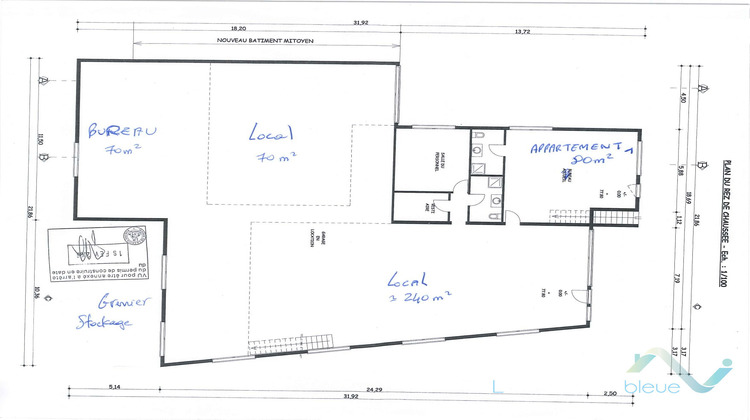
Sur une surface de terrain de 1058m2, ce bâtiment, en très bon état général, possède une surface bâtie totale de 1171m2 établie sur 3 niveaux avec une emprise au sol de 900m2.
Il se compose de plusieurs espaces commerciaux, des bureaux et 2 appartements. Actuellement tous les locaux sont loués, à l'exception de 2 bureaux d'une superficie de 70m2 chacun où des travaux sont à terminer.
Agencement des locaux :
- Au Sous-sol : 3 locaux + 1 garage - Au Rez-de-chaussée : 2 locaux, 1 local Bureaux, 1 Appartement T3 - 1er étage : 1 Appartement T4, 1 local de bureaux
Données financières :
- Revenu locatif estimé : 116040 EUR - Rentabilité brute estimée : 4,47% - Situation locative mixte (plusieurs locataires en place revenus immédiats)
Les + du Bien :
- Emplacement stratégique au sein d'une zone d'activité recherchée - Très bon état général du bâtiment - Mix Habitation/Commerce : diversification du revenu - Locaux avec potentiel d'aménagement supplémentaire - Rendement locatif attractif dans une région à forte demande.
Opportunité rare à saisir
Idéal investisseur ou professionnel souhaitant conjuguer emplacement et rentabilité.
Dossier complet sur demande.
Pour tout renseignement ou visite contactez Jonathan Gillard au 06 71 37 41 76
'Les informations sur les risques auxquels ce bien est exposé sont disponibles sur le site Géorisques http://www.georisques.gouv.fr'
Agence L'Echappée Bleue Golfe de St Tropez - La Galiote - Avenue de la Plage - 83 310 Les Marines de Cogolin
- Type de bien : Immeuble
- DPE : C - 91 à 150 kWh/².an
- GES : A -< 6 kg eq CO2/².an
- Surface : 1171 m²
- Localisation : France - provence-alpes-cote-d-azur - Var
- Ville : La Croix-Valmer
- Code postal : 83420
- Annonce créée le 19/11/2025





