Vente Immeuble 95500, Gonesse france 525 000 €
Descriptif du bien
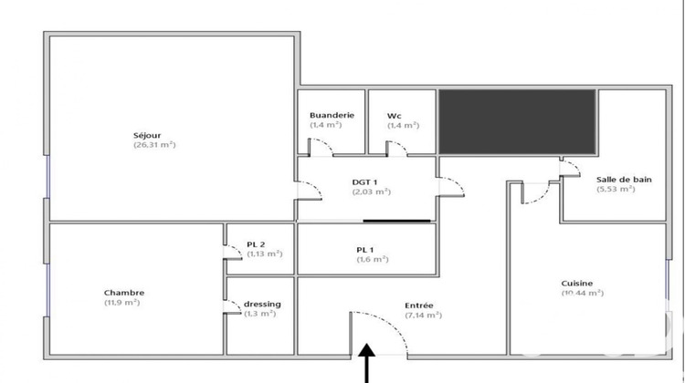
Iad France - Cindy Nielsen vous propose : Opportunité Rare - Bâtiment à Usage Multiple à Gonesse dans le Domaine de la PradeConstruit dans les années 1970, ce bâtiment de 320 m² comprend : - 250 m² de bureaux et accès privatisés- Un appartement T3 de 70 m² - Actuellement loué 700¤ par mois- 5 places de parking privatives- 2 caves Idéalement situé, il offre de nombreuses possibilités d'aménagement, que ce soit pour des investisseurs ou des professionnels cherchant un espace polyvalent et situé dans un lieu stratégique. Il convient à une activité libérale, des bureaux d'entreprise, une société de services ou une association. Aussi, la mairie autorise la transformation de l'ensemble en habitation. La proximité des transports en commun tels que le RER D, la future Ligne 17 du Métro et les autoroutes A1 / A3 / A104 facilite les déplacements et favorise l'accessibilité. Planifiez votre visite dès maintenant pour découvrir tout le potentiel de ce lot exceptionnel à Gonesse ! La presente annonce immobiliere vise 7 lots situés dans une copropriété de 100 lots au total et ne faisant l'objet d'aucune procédure en cours citée à l'article L. 721-1 du code de la construction et de l'habitation. Montant moyen mensuel de charges déclaré par le vendeur : 200¤ par mois (soit 2400 ¤ annuel). Honoraires d'agence à la charge du vendeur. Bien non soumis au DPE. Les informations sur les risques auxquels ce bien est exposé, y compris l'obligation légale de débroussaillement, sont disponibles sur le site Géorisques : http://www.georisques.gouv.fr.La présente annonce immobilière a été rédigée sous la responsabilité éditoriale de Mme Cindy Nielsen mandataire indépendant en immobilier (sans détention de fonds), agent commercial de la SAS I@D France immatriculé au RSAC de MEAUX sous le numéro 902273333, titulaire de la carte de démarchage immobilier pour le compte de la société I@D France SAS.Informations LOI ALUR : Soumis au régime de copropriété. Nombre de lots : 100. Quote part annuelle(moyenne) : 2400 euros. Honoraires charge vendeur. (gedeon_6727_32859875)
- Type de bien : Immeuble
- Surface : 320 m²
- Localisation : France - ile-de-france - Val d'oise
- Ville : Gonesse
- Code postal : 95500
- Annonce créée le 19/03/2026





