Vente Immeuble 63000, Clermont-Ferrand france 1 395 000 €
Descriptif du bien
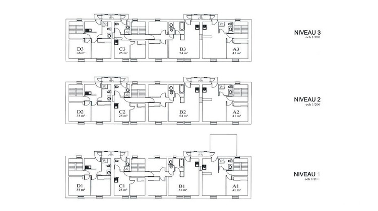
Iad France - Morgan Gomez vous propose : Immeuble de rapport libre de toute occupation (hors salon de coiffure). Situé secteur Léon Blum, proche commerces et services, il développe 771 m² sur 4 niveaux, composés de 12 appartements (T2 / T3 de 25 à 54 m²), 4 locaux commerciaux (30 à 135 m²) et 10 places de stationnement sécurisées. Trois entrées indépendantes desservent les logements, dont la plupart ont été rénovés en 2003. La toiture en bac acier date de 2018 et la façade arrière a été isolée en 2012. Chauffage électrique. Des travaux complémentaires sont à prévoir, mais le bien offre un potentiel de valorisation rare sur Clermont-Ferrand, idéal investisseur.
Honoraires d'agence à la charge du vendeur.
Information d'affichage énergétique sur ce bien : classe ENERGIE E indice 298 et classe CLIMAT B indice 8. Les informations sur les risques auxquels ce bien est exposé, y compris l'obligation légale de débroussaillement, sont disponibles sur le site Géorisques : http://www.georisques.gouv.fr.
La présente annonce immobilière a été rédigée sous la responsabilité éditoriale de M Morgan Gomez mandataire indépendant en immobilier (sans détention de fonds), agent commercial de la SAS I@D France immatriculé au RSAC de CLERMONT-FERRAND sous le numéro 848224291, titulaire de la carte de démarchage immobilier pour le compte de la société I@D France SAS.
Informations LOI ALUR :
Honoraires charge vendeur. (gedeon_6727_32000398)
- Type de bien : Immeuble
- DPE : E - 231 à 330 kWh/².an
- GES : B - 6 à 10 kg eq CO2/².an
- Surface : 771 m²
- Localisation : France - Auvergne-Rhône-Alpes - Puy-de-Dôme
- Ville : Clermont-Ferrand
- Code postal : 63000
- Annonce créée le 06/11/2025





