Vente Immeuble 33000, Bordeaux france 2 330 000 €
Descriptif du bien
Iad France - Anthony Heymann vous propose : IMMEUBLE BORDEAUX - Proche grand théâtre
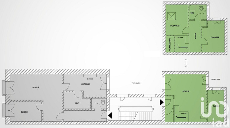
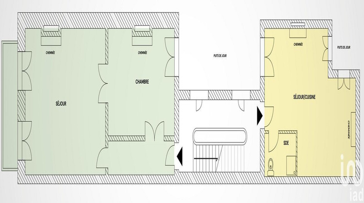
Idéalement situé dans une rue prestigieuse, secteur triangle or, immeuble pierre en bon état pour une surface totale plancher de 476 m²
Se compose de 7 lots cadastrés en secteur sauvegardé :
Un local commercial en RDC et 1er loué
Un appartement de type 2 au 2ème étage avant et un appartement de type 2 au 2ème étage arrière
Un appartement de type 2 au 3ème étage avant : libre de toute occupation
Un appartement de type 1 au 3ème étage arrière : libre de toute occupation
Un appartement de type 2 au 4ème étage avant : loué
Un appartement de type 2 duplex au 4ème étage arrière : libre de toute occupation
Pour marchands de biens ou investissement patrimoniale
Honoraires d'agence à la charge du vendeur.
Information d'affichage énergétique sur ce bien : classe ENERGIE D indice 203 et classe CLIMAT B indice 6. Les informations sur les risques auxquels ce bien est exposé, y compris l'obligation légale de débroussaillement, sont disponibles sur le site Géorisques : http://www.georisques.gouv.fr.
La présente annonce immobilière a été rédigée sous la responsabilité éditoriale de M Anthony Heymann mandataire indépendant en immobilier (sans détention de fonds), agent commercial de la SAS I@D France immatriculé au RSAC de bordeaux sous le numéro 824308506, titulaire de la carte de démarchage immobilier pour le compte de la société I@D France SAS.
Informations LOI ALUR :
Honoraires charge vendeur. (gedeon_6727_31968040)
- Type de bien : Immeuble
- DPE : D - 151 à 230 kWh/².an
- GES : B - 6 à 10 kg eq CO2/².an
- Surface : 476 m²
- Localisation : France - Nouvelle-Aquitaine - Gironde
- Ville : Bordeaux
- Code postal : 33000
- Annonce créée le 09/10/2025





