Vente Immeuble 41000, Blois france 370 000 €
Descriptif du bien
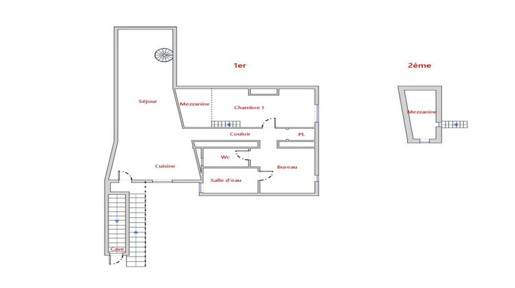
EXCLUSIVITÉ- BLOIS QUARTIER DES ECOLES - ENSEMBLE IMMOBILIER DE 187.75 m² vendu loué
Situé à 10 min à pieds du centre-ville et de ses commerces, ensemble immobilier en monopropriété de 187.75 m² vendu loué et récemment rénové . Il se compose de 2 logements vendus loués (baux récents) de type 4 de 90 m² et 98 m². L'appartement au rez-de-chaussée comprend une terrasse et un jardinet. Chaque logement est loué avec une cave.
L'ensemble des loyers représente 19 200 par an. Les logements sont en double vitrage, avec un chauffage individuel gaz de ville. Idéal investisseurs.
Les informations sur les risques auxquels ce bien est exposé sont disponibles sur le site Géorisques : www.georisques.gouv.fr
Les honoraires sont à la charge des vendeurs.
Honoraires à la charge du vendeur. Classe énergie D, Classe climat D Montant moyen estimé des dépenses annuelles d'énergie pour un usage standard, établi à partir des prix de l'énergie de l'année 2021 : entre 1720.00 et 2380.00 . Les informations sur les risques auxquels ce bien est exposé sont disponibles sur le site Géorisques : georisques.gouv.fr.
- Type de bien : Immeuble
- DPE : D - 151 à 230 kWh/².an
- GES : D - 21 à 35 kg eq CO2/².an
- Surface : 188 m²
- Localisation : France - centre-val-de-loire - Loir et Cher
- Ville : Blois
- Code postal : 41000
- Annonce créée le 08/08/2025





