Vente Immeuble 29770, Audierne france 2 265 000 €
Descriptif du bien
Audierne 29770 - Immeuble de prestige vue mer et dégagé
___
Découvrez cet immeuble avec cachet dans un secteur au fort potentiel. Situé sur un terrain piscinable de 6000 m² (classé UB, idéal pour un futur projet), cet édifice partiellement rénové de trois étages offre une vue mer et dégagée sur les hauteurs d'Audierne avec une luminosité naturelle incomparable.
___
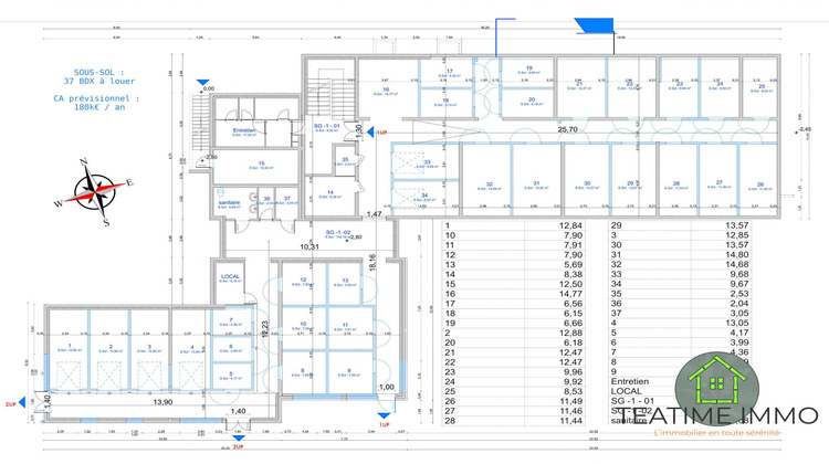
Composé de 16 appartements de quatorze T3 (+2 possibles dans les combles) et deux T2, cet immeuble est parfait pour les investisseurs avisés. De plus, il dispose de 37 boxes à louer de 350 m² en sous-sol, offrant un revenu sécurisé dont le CA prévisionnel est de 50K / an.
___
Rendement locatif brut après travaux (581k de travaux dont devis et factures, réalisés par un maître d'oeuvre, sont disponibles) : >6%
Plans d'architecte et de masse ainsi que 34 factures des travaux déjà réalisés sont disponibles.
Rendement brut amélioré : nous consulter.
Gestion locative possible.
___
L'immeuble est doté d'un parking privé avec 34 places de stationnement extérieures, garantissant ainsi la tranquillité et la sécurité de ses résidents.
___
Imaginez-vous vivre dans un cadre de vie exceptionnel, où chaque détail a été pensé pour votre confort. Les appartements prévus offrent des espaces de vie agréables et des finitions de haute qualité. Les grandes ouvertures laissent entrer une lumière naturelle abondante.
___
Cet immeuble, vendu via l'acquisition de l'ensemble des parts de la société qui en est propriétaire, est idéal pour ceux qui recherchent un investissement rentable et sécurisé dans un cadre de vie privilégié. Ne manquez pas cette opportunité unique de devenir propriétaire d'un bien d'exception.
___
À proximité, vous trouverez plusieurs commodités pratiques pour faciliter votre quotidien. À 5 min à pied, une crèche. En 5 min en voiture, vous aurez accès à plusieurs écoles maternelles / élémentaires / deux collèges. Une alimentation générale à 10 min à pied.
Honoraires à la charge du vendeur. DPE en cours. Les informations sur les risques auxquels ce bien est exposé sont disponibles sur le site Géorisques : georisques.gouv.fr.
Votre conseiller TEATIME IMMO : David Le Quellec
Agent commercial (Entreprise individuelle)
RSAC 805 130 671 RSAC Quimper
RCP 129 224 163 A 001





