Vente Divers 93100, Montreuil france 2 190 000 €
Descriptif du bien
GIFOM - vous propose à la vente bureaux occupés - Idéal investisseurs! Rentabilité brute de 9,4%, dans un ensemble immobilier en copropriété à MONTREUIL 93100 à usage industriel et commercial, à 2 pas de la porte de Bagnolet, du Métro Galliéni et de l'autoroute A3.
Sur 2 niveaux, au RDC et 1er étage, 2 plateaux aménagés en bureaux, d'une surface globale de 922 m² comprenant :
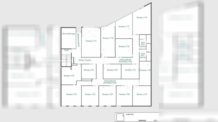
- RDC de 456,46 m² avec accès principal par hall d'entrée commun , couloir de distribution, 13 bureaux
indépendants, espace cuisine-cafeteria commun, un local technique et 2 WC avec point d'eau (homme et femme). Il est à noter que 2 des bureaux situés au RDC bénéficies également d'un accès privatif sur l'extérieur
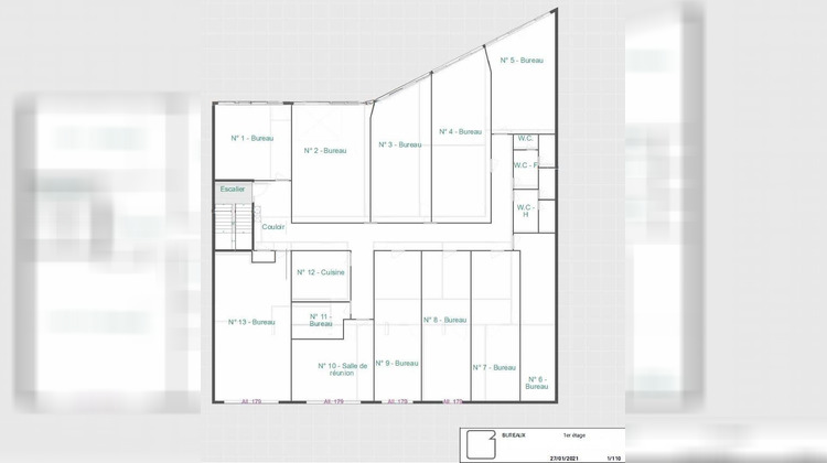
- 1er étage de 465 m², couloirs de distribution, 13 bureaux indépendants, espace cuisine cafeteria commune et 2 WC avec point d'eau (homme et femme).
- 2 emplacements de parking boxés en sous-sol et un espace de terrain de 45 m² face à l'entrée pouvant accueillir 4 places de parking.
Locaux parfaitement entretenus, sécurisés avec digicode et système de vidéo surveillance, actuellement exploité sous forme de centre d'affaires, les espaces de bureaux sont loués exclusivement avec des baux de courte durée. Le revenu locatif actuel annuel est d'environ 190 000 , il peut être augmentée à 210 000 avec la location d'un bureau administratif vacant et des emplacements de parking.
Prix de vente: 2 190 000 FAI.
Réf. Agence: VEMU 949.
GIFOM - Spécialiste en immobilier Commercial
- Type de bien : Divers
- Surface : 922 m²
- Localisation : France - ile-de-france - Seine Saint Denis
- Ville : Montreuil
- Code postal : 93100
- Annonce créée le 04/10/2024





