Vente Divers 44140, Le Bignon france 240 338 €
Descriptif du bien
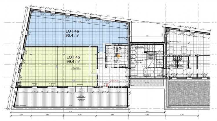
Au Sud de Nantes, à proximité de l'autoroute A83, dans un village d'entreprises situé au Bignon : Situé au 1er étage, plateau de bureaux de 96,40 m2, livré aménagé et non cloisonné avec les prestations suivantes (moquette, faux plafonds, luminaires Led, climatisation réversible)
- Le programme répond à la réglementation thermique 2020.
- Partie commune à partager (hall d'entrée, sanitaires et terrasse), accès PMR, local vélo et espace détente en extérieur.
- 3 places de stationnement comprises dans le prix. Parkings précâblés pour l'installation de bornes électriques
- Sanitaires privatifs
- Toiture végétalisée
- Prix de vente HT : 240 338 EUR + Honoraires charge acquéreur 5% HT du prix de vente HT + TVA 20%
- Livraison prévisionnelle au 2ème semestre 2025
Cette annonce vous est proposée par BERNOVILLE Sonia - - NoRSAC: , Enregistré à de
LOCAUX-BUREAUX-COMMERCES 02 55 07 86 35
- Type de bien : Divers
- Surface : 96 m²
- Localisation : France - pays-de-la-loire - Loire Atlantique
- Ville : Le Bignon
- Code postal : 44140
- Annonce mise à jour le 29/01/2025





