Vente Divers 78170, La Celle-Saint-Cloud france 365 000 €
Descriptif du bien
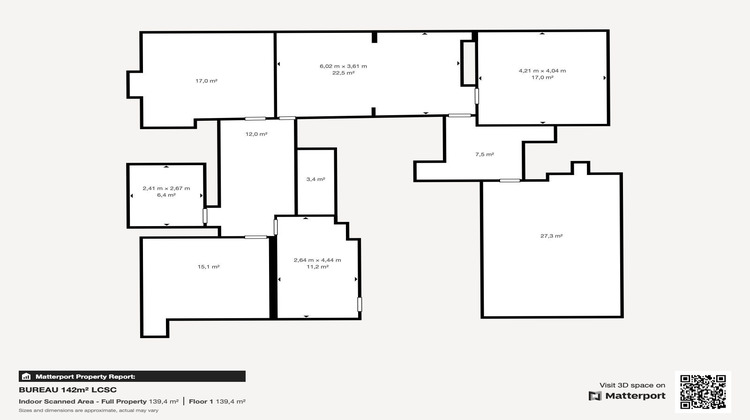
À La Celle-Saint-Cloud, bureaux de 142 m² situé en rez-de-chaussée offre une opportunité rare, que vous soyez à la recherche d'un espace professionnel ou d'un projet immobilier à forte valeur ajoutée.
Pour un usage de bureaux, ces locaux sont idéalement adaptés à une activité professionnelle grâce à leur configuration flexible. Avec la possibilité de diviser l'espace à partir de 80 m², ils s'adaptent aux besoins d'entreprises de toutes tailles ou à la création d'un espace de coworking. Bien que des travaux soient nécessaires pour moderniser les lieux, ce bien dispose de solides atouts : éligibilité à la fibre pour une connexion rapide, accès pratique et proximité immédiate des commodités (écoles, commerces et restaurants accessibles en 5 minutes à pied).
La localisation est un véritable atout : à seulement 10 minutes à pied de la gare et proche de nombreuses infrastructures (crèches, collèges, espaces verts et services médicaux), ce bien se trouve au coeur d'un quartier dynamique et recherché.
Que vous envisagiez d'y établir votre entreprise ou de lancer un projet de valorisation immobilière, ce bien est une opportunité unique à ne pas manquer. Contactez-nous dès maintenant pour en savoir plus ou organiser une visite.
Honoraires inclus de 5% à la charge de l'acquéreur. Prix hors honoraires 347 619 . Dans une copropriété de 137 lots. Aucune procédure n'est en cours. Classe énergie D, Classe climat E. Les informations sur les risques auxquels ce bien est exposé sont disponibles sur le site Géorisques : georisques.gouv.fr.
- Type de bien : Divers
- DPE : D - 151 à 230 kWh/².an
- GES : E - 36 à 55 kg eq CO2/².an
- Surface : 142 m²
- Localisation : France - ile-de-france - Yvelines
- Ville : La Celle-Saint-Cloud
- Code postal : 78170
- Annonce créée le 02/05/2025





