Vente Divers 89300, Joigny france 280 000 €
Descriptif du bien
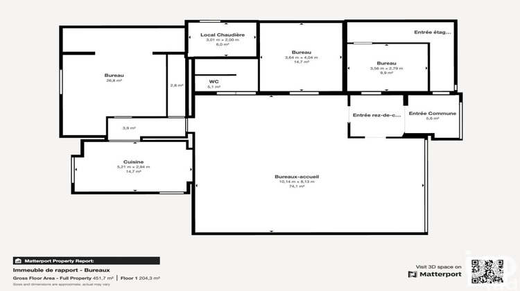
Iad France - Guillaume Jacquelin (07 88 11 48 93) vous propose : Immeuble de rapport à 10,04 % de rentabilité ou projet professionnel, ce bien se compose d'une entrée indépendante en rez-de-chaussée desservant un grand open space, plusieurs bureaux dont trois fermés, des WC privés et publics, ainsi qu'un espace cuisine avec accès au jardin, lequel comprend également une place de stationnement privative. Le stationnement destiné à la clientèle se fait devant l'immeuble.
Les locaux, en rez-de-chaussée, ont été entièrement rénovés en 2022 afin d'accueillir des espaces de bureaux, aujourd'hui tous aménagés pour répondre aux besoins de l'activité précédente. Un escalier dessert actuellement une grande pièce ayant servi de salle de repos et de sport.
Les surfaces annexes, telles que la chaufferie, ont également été travaillées, avec notamment l'installation d'une chaudière à gaz Viessmann datant d'environ 2019, ainsi que la remise aux normes du tableau électrique en 2022.
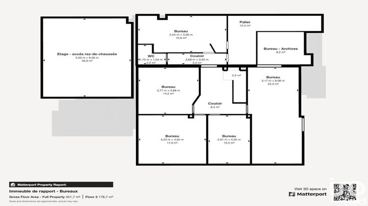
Cet immeuble offre une véritable opportunité d'investissement pour un projet professionnel, mais aussi pour du locatif, car l'entrée dessert également un étage indépendant comprenant une salle d'archives, une grande pièce, un couloir desservant quatre bureaux et un WC. Au deuxième étage se trouvent deux grandes pièces servant actuellement de combles isolés.
Ce projet vous offre trois options :
La première consiste à exploiter les bureaux en rez-de-chaussée pour votre activité et à utiliser l'étage. Situé en zone ZRR, vous bénéficiez d'un avantage fiscal détaillé ci-dessous.
La seconde option serait d'utiliser le rez-de-chaussée pour votre activité et de louer l'étage, soit en tant que local professionnel, soit en logement particulier, afin de couvrir l'intégralité de vos charges.
La troisième option, du point de vue d'un investisseur, consiste à créer quatre logements confortables pour générer un revenu locatif de 500 euros chacun et la location de l'open space à 2 000 ¤. Les chiffrages et plans ont été réalisés, les artisans nécessaires sont déjà intervenus pour faciliter votre projet. Le rendement final, après travaux, est estimé à 10,04 % brut, un emprunt sur 15 ans permettrait de vous dégager 381 ¤ de cash-flow positifs en plus !
Les plans de projection et le détail du chiffrage sont disponibles sur demande après un entretien téléphonique. Vous trouverez les plans actuels en ligne dans l'annonce ainsi qu'une visite virtuelle.
Concernant l'avantage fiscal en zone ZRR, voici les détails :
Depuis le 1er juillet 2017, la Communauté de Communes du Jovinien est classée en Zone de Revitalisation Rurale (ZRR), en application de la réforme adoptée par la loi de finances rectificative pour 2015.
L'ensemble des communes membres de la Communauté de Communes du Jovinien bénéficie de cette classification.
Ainsi, les entreprises créées ou reprises à compter du 1er juillet 2017 et jusqu'au 31 décembre 2023 peuvent bénéficier, sous conditions, des exonérations suivantes :
Exonération d'impôt sur les bénéfices (100 % pendant 5 ans, puis dégressif les 6e, 7e et 8e années),
Exonération de plein droit de la CFE et de la CVAE (5 ans),
Exonération de cotisations sociales (pendant 12 mois),
Exonération sur les opérations de crédit-bail immobilier.
Investisseur, profession libérale, entrepreneur ou chef d'entreprise, je reste à votre disposition.
Information d'affichage énergétique sur le bien associé à cette annonce : DPE C indice 158 et GES D indice 28. La présente annonce immobilière a été rédigée sous la responsabilité éditoriale de M. Guillaume Jacquelin (ID 67887), Agent Commercial mandataire en immobilier immatriculé au Registre Spécial des Agents Commerciaux (RSAC) du Tribunal de Commerce de AUXERRE sous le numéro 913788147
Retrouvez tous nos biens sur notre site internet. www.iad...
Informations LOI ALUR :
Honoraires charge vendeur. (gedeon_6727_31272509)
- Type de bien : Divers
- Surface : 360 m²
- Localisation : France - Bourgogne-Franche-Comté - Yonne
- Ville : Joigny
- Code postal : 89300
- Annonce mise à jour le 05/06/2025





