Vente Divers 14760, Bretteville-sur-Odon france 622 000 €
Descriptif du bien
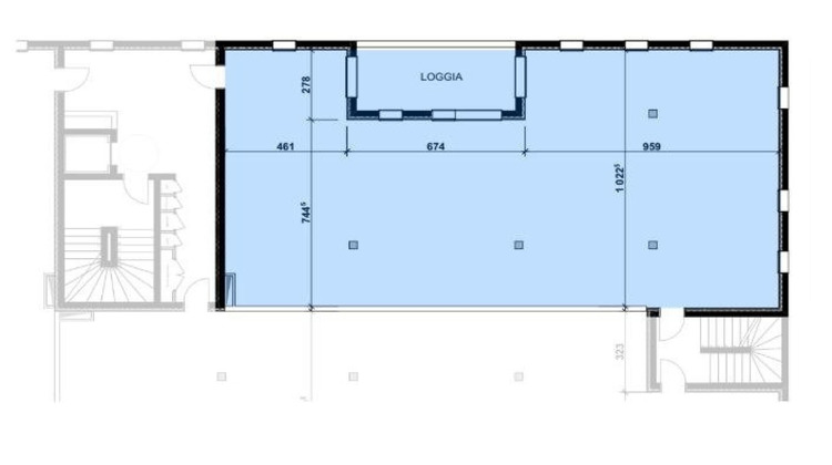
CAEN. Périphérique ouest, plateau de bureaux d'une surface de 251 m². 4 place de stationnement. Livraison fin 2026. PRIX : 598.000 ¤ HT FAI.
Le bien comprend 4 lots, et il est situé dans une copropriété de 8 lots (les charges courantes annuelles moyennes de copropriété sont de 1 ¤ et le syndicat des copropriétaires ne fait pas l'objet d'une procédure citée à l'article L. 721-1 du code de la construction et de l'habitation).
Les informations sur les risques auxquels ce bien est exposé sont disponibles sur le site Géorisques : www.georisques.gouv.fr
Prix de vente honoraires d'agence inclus : 622 000 ¤ HT + 124 400 ¤ TVA, soit 746 400 ¤ TTC
Prix de vente hors honoraires d'agence : 596 083,34 ¤ HT + 119 216,67 ¤ TVA, soit 715 300,01 ¤ TTC
Honoraires d'agence : 25 916,66 ¤ HT + 5 183,33 ¤ TVA, soit 31 099,99 ¤ TTC (4.35 % TTC du prix de vente hors honoraires d'agence)
Honoraires charge acquéreur
Contactez votre conseiller SAFTI : Philippe LEFORESTIER, Tél. : 06 80 53 18 47, E-mail : philippe.leforestier@safti.fr - EI - Agent commercial immatriculé au RSAC de Caen sous le numéro 382788321.
Informations LOI ALUR :
Soumis au régime de copropriété.
Nombre de lots : 8.
Quote part annuelle(moyenne) : 1 euros.
Honoraires : 4.35 % TTC charge acquéreur.
Prix hors honoraires : 596 084 ¤. (gedeon_26118_32551671)


