Vente Divers 72230, ARNAGE france 295 000 €
Descriptif du bien
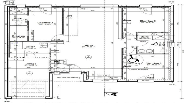
À seulement 5MN d'Arnage, au cœur de Moncé-en-Belin, commune dynamique et recherchée, cette maison neuve entièrement de plain-pied séduit par la qualité de sa conception, son confort moderne et la rareté de sa configuration. Développée de plain-pied, elle offre une vie quotidienne fluide, confortable et sans contrainte, dans un cadre à la fois contemporain et chaleureux. La pièce de vie, spacieuse et baignée de lumière, accueille une cuisine aménagée et équipée ouverte sur l'espace salon-séjour, créant un ensemble harmonieux, convivial et résolument dans l'air du temps. Dans son prolongement, une buanderie vient parfaire la fonctionnalité du lieu et permet un accès direct au garage avec porte motorisée. L'agencement intérieur a été pensé pour préserver l'intimité de chacun. La suite parentale dispose de sa propre salle d'eau, d'un espace dressing et d'une agréable vue sur le jardin. À l'opposé, deux autres chambres composent un second espace nuit, accompagné d'une grande salle d'eau avec double vasque. Chaque chambre a été conçue pour pouvoir intégrer un placard mural. Un WC indépendant, suspendu, avec fenêtre, complète l'ensemble, avec la possibilité d'y aménager un point d'eau supplémentaire. La grande baie vitrée de la pièce de vie prolonge naturellement les volumes vers une terrasse ouverte sur un jardin entièrement clos, idéal pour profiter des beaux jours en toute sérénité. Construite selon les normes RT 2020, cette maison offre des prestations de qualité et un confort de vie optimal grâce à son chauffage au sol alimenté par une pompe à chaleur air/eau, ainsi qu'à sa domotique intégrée. Entièrement neuve, elle constitue une opportunité rare sur le marché : un bien clé en main, alliant modernité, confort et élégance, dans un esprit résolument actuel. Un plain-pied rare à la vente, à découvrir sans tarder. Les honoraires sont à la charge du vendeur. Les informations sur les risques auxquels ce bien est exposé sont disponibles sur le site Géorisques : www. georisques. gouv. fr. Réseau Immobilier CAPIFRANCE - Votre agent commercial (RSAC N°397 789 975 - Greffe de PARIS) Philippe-Louis NAON Entrepreneur Individuel 07 83 17 07 97 - Réf.948382
- Type de bien : Divers
- DPE : A -< 51 kWh/².an
- GES : A -< 6 kg eq CO2/².an
- Surface : 94 m²
- Localisation : France - pays-de-la-loire - Sarthe
- Ville : ARNAGE
- Code postal : 72230
- Annonce créée le 11/04/2026





