Vente Divers 74000, Annecy france 1 207 500 €
Descriptif du bien
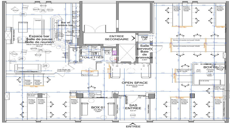
Disponible à la location, au sein du quartier prisé des Galeries Lafayette à Annecy, un plateau de bureaux aux finitions haut de gamme d'une surface de 219,75m².
Les bureaux bénéficie d'une distribution alliant open-space, espaces de réunion, bar (réplique exacte du Central Perk de la série Friends) et sanitaires H/F.
Les locaux sont situés en rez-de-chaussée d'un immeuble résidentiel de standing et un parking de copropriété est à disposition des occupants de l'immeuble.
VOIR PLANS EN PHOTOS.
Conditions :
- Prix de vente : 1 207 500 HT.
- Charges prévisionnelles : 2 248,77 par an,
- Montant indicatif de la taxe foncière : 4 822 par an.
Contact : nicolas.parroche@reseau-brokers.com - 06 32 74 60 62.
RESEAU BROKERS® est le premier cabinet immobilier d'entreprise structuré en réseau de mandataires. Nous maillons avec notre équipe de 80 Brokers une grande partie du territoire national pour accompagner nos entreprises clientes dans leurs recherches de commerces, bureaux, locaux d'activités, immeubles et fonciers.
www.reseau-brokers.com
Honoraires à la charge du vendeur. DPE en cours. Les informations sur les risques auxquels ce bien est exposé sont disponibles sur le site Géorisques : georisques.gouv.fr.
Votre conseiller AVINIM RESEAU BROKERS : Nicolas PARROCHE
Agent commercial (Entreprise individuelle)
RSAC 478800212
RCP 7953190/S17093745
- Type de bien : Divers
- Surface : 220 m²
- Localisation : France - Auvergne-Rhône-Alpes - Savoie (Haute)
- Ville : Annecy
- Code postal : 74000
- Annonce mise à jour le 23/01/2026





