Vente Boutique 63200, Riom france 99 500 €
Descriptif du bien
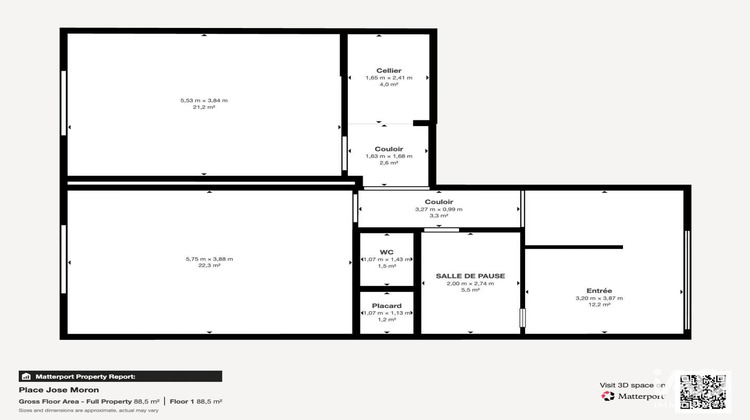
Iad France - Igor Medjean (06 26 82 28 20) vous propose : Local commercial ou bureaux - 75 m² environ - Place José Moron
Idéalement situé place José Moron, ce local de 75 m² environ offre une excellente visibilité grâce à sa vitrine de 3,80 m donnant directement sur la place.
Le bien se compose de :
- Une pièce d'entrée pouvant parfaitement faire office de salle d'attente ou d'accueil
- Une salle de pause
- Une première pièce de 21 m² environ
- Une seconde pièce de 22 m² environ
- Un WC indépendant
- Un cellier
La distribution des espaces permet une organisation fonctionnelle, parfaitement adaptée à une activité de bureaux, médicale, paramédicale ou toute activité tertiaire.
La visibilité commerciale et la configuration intérieure constituent de véritables atouts pour l'installation de votre activité.
Une visite virtuelle est disponible directement dans l'annonce afin de découvrir le local à distance et vous projeter facilement.
Local disponible rapidement.
Pour plus d'informations ou organiser une visite, contactez-moi.
Information d'affichage énergétique sur le bien associé à cette annonce : classe ENERGIE D indice 255 et classe CLIMAT B indice 7. La présente annonce immobilière a été rédigée sous la responsabilité éditoriale de M. Igor Medjean (ID 22405), Agent Commercial mandataire en immobilier immatriculé au Registre Spécial des Agents Commerciaux (RSAC) du Tribunal de Commerce de AUXERRE sous le numéro 498189828
Retrouvez tous nos biens sur notre site internet. www.iadfrance.fr.
Informations LOI ALUR :
Honoraires charge vendeur. (gedeon_6727_32758920)
- Type de bien : Boutique
- DPE : D - 151 à 230 kWh/².an
- GES : B - 6 à 10 kg eq CO2/².an
- Surface : 75 m²
- Localisation : France - Auvergne-Rhône-Alpes - Puy-de-Dôme
- Ville : Riom
- Code postal : 63200
- Annonce créée le 26/02/2026





