Vente Boutique 51100, Reims france 600 000 €
Descriptif du bien
Iad France - Alexandra Mautrait (06 20 88 60 93) vous propose : À VENDRE - LOCAL COMMERCIAL - REIMS
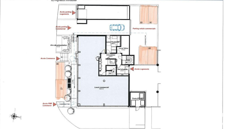
Idéalement situé sur un axe passant de Reims, avenue d'Épernay, découvrez ce local commercial d'une surface de 194 m² environ offrant une excellente visibilité et un fort potentiel pour votre activité.
oSurface : 194 m² environ
oStationnement : 6 places privatives, dont 1 place PMR
oAccessibilité : conforme pour accueillir tout type de clientèle
o Emplacement stratégique : secteur dynamique, proche des commerces, axes routiers et zones d'activités
Ce local conviendra parfaitement pour une activité commerciale, professionnelle ou libérale. Sa configuration permet de nombreuses possibilités d'aménagement selon vos besoins.
Atouts :
oBonne visibilité
oFacilité d'accès
oStationnements privatifs
oEnvironnement attractif
Pour plus d'informations ou organiser une visite, contactez-moi dès maintenant par téléphone
Information d'affichage énergétique sur le bien associé à cette annonce : DPE NS indice et GES NS indice. La présente annonce immobilière a été rédigée sous la responsabilité éditoriale de Mlle Alexandra Mautrait (ID 57687), Agent Commercial mandataire en immobilier immatriculé au Registre Spécial des Agents Commerciaux (RSAC) du Tribunal de Commerce de TROYES sous le numéro 518267000
Retrouvez tous nos biens sur notre site internet. www.iadfrance.fr.Informations LOI ALUR : Honoraires charge vendeur. (gedeon_6727_33041755)



