Vente Boutique 06000, Nice france 787 500 €
1 / 6
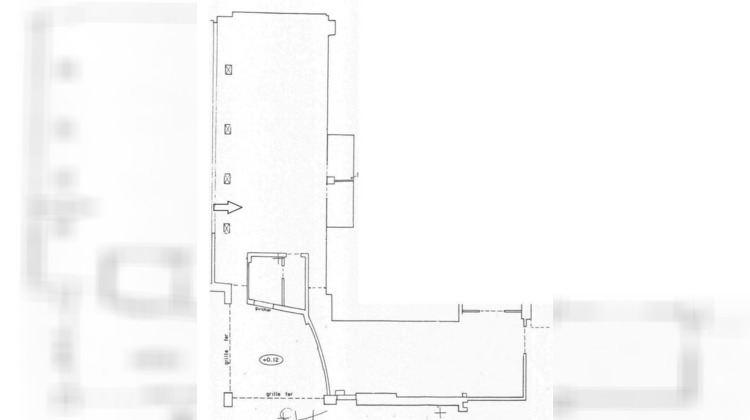
Descriptif du bien
eXp Realty, le plus grand réseau immobilier inter-connecté au Monde, vous propose ce vaste local commercial de 184 m² avec plusieurs espaces fonctionnels : un grand hall principal, un bureau, un local de stockage et un sanitaire. L'ensemble est complété par des places de parking fermées de 35m². À proximité immédiate des commerces, des transports et des axes principaux
Votre conseiller eXp Realty : Sergey BUYALSKIY
Agent commercial (Entreprise individuelle)
RSAC 922 058 532 NICE
RCP MMA 127122454
- Type de bien : Boutique
- Surface : 184 m²
- Localisation : France - provence-alpes-cote-d-azur - Alpes Maritimes
- Ville : Nice
- Code postal : 06000
- Disponible le 12/12/2025
- Annonce mise à jour le 20/02/2026





