Vente Boutique 89000, Auxerre france 115 000 €
Descriptif du bien
Iad France - Guillaume Jacquelin (07 88 11 48 93) vous propose : Découvrez ce local commercial situé dans le quartier prisé de la rue du Pont, à proximité immédiate de tous commerces, bénéficiant d'un parking gratuit à 200 mètres ainsi que d'un passage de clientèle soutenu.
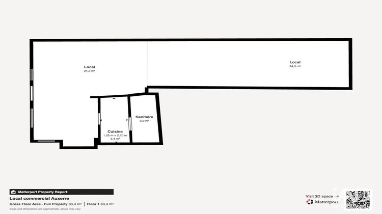
Ce bien se compose d'une vitrine ouvrant sur une boutique, d'une arrière-boutique séparée par une verrière, d'un accès à une cour commune, d'un espace cuisine ainsi que d'une salle de bains avec WC.
Le local, lumineux et doté d'un chauffage individuel au gaz, constitue une opportunité idéale pour un projet professionnel (boutique, bureaux) ou pour un investissement locatif.
Rentabilité brute : 9,69 %.
Détail des charges disponible sur demande.
Visite virtuelle et plan disponibles.
Information d'affichage énergétique sur le bien associé à cette annonce : DPE NS indice et GES NS indice. La présente annonce immobilière a été rédigée sous la responsabilité éditoriale de M. Guillaume Jacquelin (ID 67887), Agent Commercial mandataire en immobilier immatriculé au Registre Spécial des Agents Commerciaux (RSAC) du Tribunal de Commerce de AUXERRE sous le numéro 913788147
Retrouvez tous nos biens sur notre site internet. www.iadfrance.fr.
Informations LOI ALUR :
Honoraires charge vendeur. (gedeon_6727_32758765)
- Type de bien : Boutique
- Surface : 52 m²
- Localisation : France - Bourgogne-Franche-Comté - Yonne
- Ville : Auxerre
- Code postal : 89000
- Annonce créée le 26/02/2026





