Vente Appartement 68920, Wintzenheim france 190 800 €
Descriptif du bien
Iad France - Sarah Rozière (06 99 86 19 42) vous propose : Appartement T2 avec balcon à Wintzenheim
Située rue Clemenceau à Wintzenheim, la résidence Jardin Secret s'intègre dans un environnement urbain en plein renouveau, au cOEur du village. Cette adresse propose un cadre de vie pratique et agréable, à deux pas des commerces, des transports et des équipements culturels. Disponible 2027.
Un appartement raffiné :
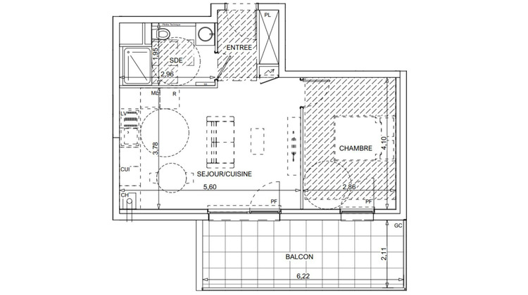
Situé au 1 er étage, cet appartement T2 de 42 m² environ habitables se prolonge par un balcon de 13 m² environ.
- Séjour / cuisine de 22 m² environ.
- Une chambre confortable.
- Salle d'eau moderne.
- Annexe incluse : un garage.
De belles prestations :
- Chauffage au sol par chaudière individuelle au gaz.
- Volets roulants motorisés et menuiseries PVC.
- Résidence sécurisée avec contrôle d'accès.
L'art de vivre à Wintzenheim :
- COEur de village et services accessibles à pied.
- Commerces, écoles et services à proximité immédiate.
- Accès facile aux grands axes routiers.
N'hésitez pas à me contacter pour plus d'informations ou pour un accompagnement sur mesure.
Honoraires d'agence à la charge du vendeur. Bien non soumis au DPE. Les informations sur les risques auxquels ce bien est exposé sont disponibles sur le site Géorisques : www.georisques.gouv.fr. La présente annonce immobilière a été rédigée sous la responsabilité éditoriale de Mlle Sarah Rozière EI (ID 83696), mandataire indépendant en immobilier (sans détention de fonds), agent commercial de la SAS I@D France immatriculé au RSAC de Clermont-Ferrand sous le numéro 978616993, titulaire de la carte de démarchage immobilier pour le compte de la société I@D France SAS.
Retrouvez tous nos biens sur notre site internet. www.iadfrance.fr.Informations LOI ALUR : Honoraires charge vendeur. (gedeon_6727_32571068)
- Type de bien : Appartement
- Surface : 42 m²
- Localisation : France - Grand Est - Rhin (Haut)
- Ville : Wintzenheim
- Code postal : 68920
- Annonce créée le 16/04/2026




