Vente Appartement 68920, Wintzenheim france 175 500 €
Descriptif du bien
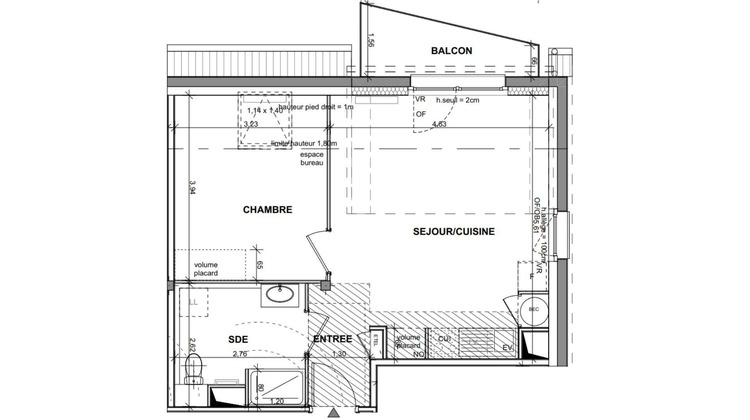
Iad France - Sarah Rozière (06 99 86 19 42) vous propose : Appartement T2 avec balcon à Wintzenheim.
Située Rue Sainte-Odile à Wintzenheim, la résidence Éclats de Vigne s'inscrit dans un quartier calme et résidentiel, à proximité immédiate de Colmar. Son architecture sobre et contemporaine, associée à des espaces paysagers soignés, offre un cadre de vie agréable, pratique et serein, à proximité des commerces, des écoles et des transports. Disponible 2027.
Un appartement raffiné :
Situé au 3 ème étage, cet appartement T2 de 42 m² environ habitables se prolonge par un balcon de 4 m² environ.
- Séjour / cuisine de 22 m² environ.
- Une chambre confortable.
- Salle d'eau moderne.
- Annexe incluse : un parking.
De belles prestations :
- Menuiseries PVC avec volets roulants.
- Résidence sécurisée, clôturée, avec contrôle d'accès et stationnements.
L'art de vivre à Wintzenheim :
- Commerces, écoles et services accessibles à proximité.
- Colmar et son centre-ville à quelques minutes.
- Transports en commun proches.
- Accès rapide aux axes routiers principaux.
- Quartier résidentiel calme, idéal pour une résidence principale ou un investissement.
N'hésitez pas à me contacter pour plus d'informations ou pour un accompagnement sur mesure.
Honoraires d'agence à la charge du vendeur. Bien non soumis au DPE. Les informations sur les risques auxquels ce bien est exposé sont disponibles sur le site Géorisques : www.georisques.gouv.fr. La présente annonce immobilière a été rédigée sous la responsabilité éditoriale de Mlle Sarah Rozière EI (ID 83696), mandataire indépendant en immobilier (sans détention de fonds), agent commercial de la SAS I@D France immatriculé au RSAC de Clermont-Ferrand sous le numéro 978616993, titulaire de la carte de démarchage immobilier pour le compte de la société I@D France SAS.
Retrouvez tous nos biens sur notre site internet. www.iadfrance.fr.
Informations LOI ALUR :
Honoraires charge vendeur. (gedeon_6727_32571075)
- Type de bien : Appartement
- Surface : 42 m²
- Localisation : France - Grand Est - Rhin (Haut)
- Ville : Wintzenheim
- Code postal : 68920
- Annonce créée le 12/02/2026


