Vente Appartement 62126, Wimille france 342 000 €
Descriptif du bien
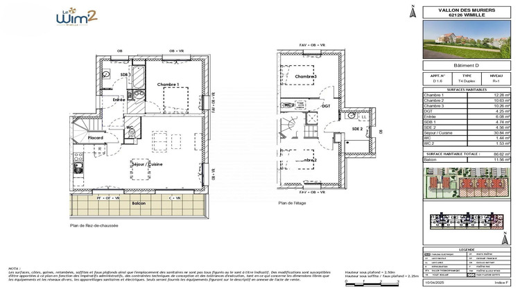
Découvrez Le WIM 2 : Votre Nouveau Refuge Urbain. Imaginez-vous dans un cadre de vie où modernité et confort se rencontrent harmonieusement. Le WIM 2, un ensemble immobilier d'exception, vous ouvre ses portes dès 2027. Cet appartement neuf, situé dans un environnement privilégié, est le parfait mélange de design contemporain et de fonctionnalité. À l'intérieur, chaque détail a été pensé pour vous offrir un espace de vie lumineux et accueillant. Les ouvertures en PVC, associées à des portes à double vitrage, garantissent une isolation optimale, tout en laissant entrer une lumière naturelle abondante. Le chauffage individuel assure une température agréable tout au long de l'année, créant une atmosphère chaleureuse et sécurisante. Imaginez-vous vous réveiller chaque matin dans un appartement où chaque recoin respire la tranquillité et l'élégance. La cuisine moderne, équipée des dernières technologies, vous permettra de préparer des repas savoureux avec aisance. Le salon, spacieux et lumineux, est l'endroit idéal pour recevoir vos proches ou simplement vous détendre après une longue journée. Le WIM 2 n'est pas seulement un lieu de résidence, c'est un véritable havre de paix où vous pourrez vous épanouir. Les finitions soignées et les matériaux de haute qualité témoignent de l'engagement de l'agence La Villa Immobilier à vous offrir le meilleur. Ne manquez pas cette opportunité unique de vivre dans un environnement où tout est pensé pour votre bien-être. Le WIM 2, c'est bien plus qu'un appartement, c'est un mode de vie. À proximité, vous trouverez plusieurs commodités pratiques pour faciliter votre quotidien. À seulement 5 minutes à pied, vous aurez accès à un arrêt de bus et à une alimentation générale. Plusieurs restaurants se trouvent à 10 minutes à pied, parfaits pour des sorties gourmandes. Pour les familles, une crèche et une maternelle sont accessibles en 5 minutes en voiture et 15 minutes à pied. Un parc et jardin se trouve à 15 minutes à pied, idéal pour des promenades relaxantes. En 10 minutes en voiture, vous rejoindrez un hôpital et plusieurs médecins généralistes sont disponibles à 10 minutes à pied. De plus, la fibre est éligible, garantissant une connexion internet rapide et fiable.
Honoraires à la charge du vendeur. Dans une copropriété de 53 lots. Aucune procédure n'est en cours. Non soumis au DPE. Les informations sur les risques auxquels ce bien est exposé sont disponibles sur le site Géorisques : georisques.gouv.fr.
- Type de bien : Appartement
- Surface : 86 m²
- Localisation : France - Hauts-de-France - Pas de Calais
- Ville : Wimille
- Code postal : 62126
- Annonce créée le 30/05/2025

