Vente Appartement 13127, Vitrolles france 256 000 €
Descriptif du bien
Découvrez votre Nouveau Nid Douillet à Vitrolles
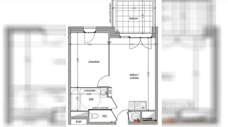
Bienvenue dans ce magnifique appartement T2 flambant neuf situé à Vitrolles, une ville dynamique et accueillante. Niché au coeur d'un quartier résidentiel paisible, cet appartement de 37,61 m² offre un cadre de vie idéal pour les jeunes couples ou les célibataires en quête de confort et de modernité.
L'appartement, construit en 2024, se distingue par son état neuf et ses finitions soignées. Dès l'entrée, vous serez séduit par l'élégance de l'espace de vie. Le séjour, avec ses 20 m², est baigné de lumière naturelle grâce à ses grandes fenêtres en double vitrage PVC. Imaginez-vous y recevoir vos amis ou simplement vous détendre après une journée bien remplie.
La cuisine, aménagée en coin cuisine, est prête à être équipée selon vos goûts et besoins. Vous apprécierez également la salle de bains moderne et fonctionnelle, ainsi que les WC indépendants, garantissant un confort optimal au quotidien.
L'appartement dispose d'une chambre spacieuse, idéale pour se ressourcer après une journée active. Le balcon de 7 m², exposé Nord-Est, offre un espace extérieur agréable où vous pourrez profiter de moments de détente en plein air, tout en admirant la vue sur la ville.
Cet appartement est situé au 2ème étage d'une résidence récente, équipée d'un ascenseur pour un accès facile. Le sous-sol offre un espace supplémentaire pratique pour le rangement. Le chauffage individuel garantit une maîtrise parfaite de votre consommation énergétique.
Côté commodités, vous serez ravis de trouver à proximité :
À 5 minutes à pied : 1 épicerie, 2 restaurants, 8 arrêts de bus et 2 crèches.
À 10 minutes à pied : 2 maternelles, 1 école élémentaire, 2 parcs et jardins, et 2 cabinets de médecins généralistes.
Ne manquez pas cette opportunité unique de vivre dans un appartement neuf, alliant confort, modernité et praticité. Contactez GUILLEM IMMOBILIER dès aujourd'hui pour organiser une visite et découvrir votre futur chez-vous.
Honoraires à la charge du vendeur. Dans une copropriété de 206 lots. Aucune procédure n'est en cours. Non soumis au DPE. Les informations sur les risques auxquels ce bien est exposé sont disponibles sur le site Géorisques : georisques.gouv.fr.
Votre conseiller GUILLEM IMMOBILIER : Présidente - Solange GUILLEMIN
Carte T 6601 2023 000 000 001
RCP ALLIANZ IARD
- Type de bien : Appartement
- Surface : 37 m²
- Localisation : France - provence-alpes-cote-d-azur - Bouche-du-Rhone
- Ville : Vitrolles
- Code postal : 13127
- Disponible le 31/03/2025
- Annonce créée le 04/07/2025

