Vente Appartement 13127, Vitrolles france 251 500 €
Descriptif du bien
Découvrez votre Nid Douillet en Plein Coeur de Vitrolles
Plongez dans l'élégance et la modernité avec cet appartement T2 flambant neuf, situé dans la charmante ville de Vitrolles. Construit en 2024, cet appartement de 37,57 m² offre un cadre de vie exceptionnel, alliant confort et fonctionnalité. Idéalement situé au premier étage d'un immeuble de deux étages, cet appartement est doté d'un ascenseur pour un accès facile et pratique.
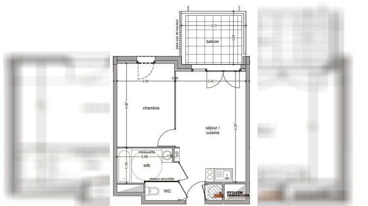
L'appartement se compose d'un séjour spacieux de 20 m², parfait pour recevoir vos proches ou simplement vous détendre. La cuisine, en coin cuisine, est non équipée, vous permettant ainsi de laisser libre cours à votre créativité et de l'aménager selon vos goûts. Une chambre confortable et une salle de bains moderne complètent cet espace de vie harmonieux. Le WC indépendant ajoute une touche de praticité supplémentaire.
Profitez également d'un balcon de 8 m², offrant une vue imprenable sur la ville et une exposition sud-ouest pour des moments de détente baignés de lumière naturelle. L'isolation RT2012 garantit un confort thermique optimal tout au long de l'année.
Les parties communes, tout comme l'intérieur de l'appartement, sont en parfait état de neuf, témoignant d'une construction récente et de qualité. Le type de chauffage individuel assure une gestion autonome et économique de votre consommation énergétique.
Vitrolles, avec ses nombreuses commodités à proximité, vous offre un cadre de vie idéal. À seulement 5 minutes à pied, vous trouverez des arrêts de bus, des crèches, des restaurants et des commerces d'alimentation générale. À 10 minutes à pied, vous accéderez à des écoles maternelles et élémentaires, des parcs et jardins, ainsi que des cabinets de médecins généralistes. Cette localisation privilégiée vous permet de profiter pleinement de la ville tout en étant au coeur de la nature.
Ne manquez pas cette opportunité unique de vivre dans un appartement neuf, moderne et bien situé. Contactez-nous dès aujourd'hui pour organiser une visite et découvrir votre futur chez-vous.
Honoraires à la charge du vendeur. Dans une copropriété de 206 lots. Aucune procédure n'est en cours. Non soumis au DPE. Les informations sur les risques auxquels ce bien est exposé sont disponibles sur le site Géorisques : georisques.gouv.fr.
Votre conseiller GUILLEM IMMOBILIER : Présidente - Solange GUILLEMIN
Carte T 6601 2023 000 000 001
RCP ALLIANZ IARD
- Type de bien : Appartement
- Surface : 37 m²
- Localisation : France - provence-alpes-cote-d-azur - Bouche-du-Rhone
- Ville : Vitrolles
- Code postal : 13127
- Disponible le 31/03/2025
- Annonce créée le 04/07/2025





