Vente Appartement 35500, VITRE france 345 000 €
Descriptif du bien
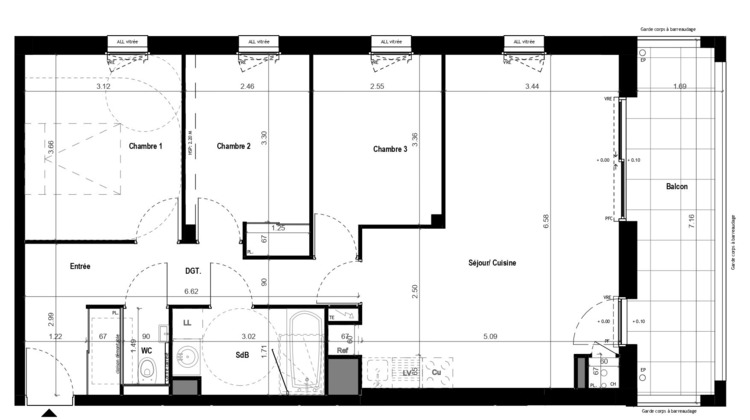
VITRÉ - Centre ville Appartement 4 pièces de 74.77m² Sud - 2ème étage - ascenseur - balcon 11.89 m² - garage double en sous-sol sécurisé. Situé en plein centre-ville, au sein d'une résidence offrant un cadre de vie privilégié, cet appartement de 4 pièces, d'une superficie de 74.77m² exposé plein Sud, bénéficie d'un emplacement idéal à proximité immédiate des commerces, des services et des transports. Niché au 2ème étage avec ascenseur, il se compose d'une entrée avec placard, dégagement, d'un séjour salon lumineux avec cuisine, prolongé par un balcon de 11.89m². L'espace nuit comprend trois chambres, une salle de bains et wc indépendant. Un garage double sécurisé en sous-sol complète ce bien. Prix promoteur - Frais de notaire réduits. Les informations sur les risques auxquels ce bien est exposé sont disponibles sur le site Géorisques : www.georisques.gouv.fr. Photos non contractuelles - Suggestions d'aménagements. Chauffage individuel. Copropriété de 65 lots - dont 65 lots habitation. Charges annuelles : 1051 euros.
- Type de bien : Appartement
- Surface : 74 m²
- Localisation : France - Bretagne - Ile et Vilaine
- Ville : VITRE
- Code postal : 35500
- Annonce mise à jour le 07/04/2026


