Vente Appartement 42780, Violay france 59 000 €
Descriptif du bien
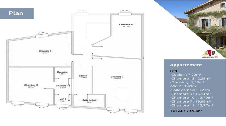
Appartement T4 de 80m² à rénover Gros potentiel en plein centre de Violay
Situé au 1er étage d'une petite copropriété de 5 lots, cet appartement spacieux de 80m² offre une belle opportunité pour les amateurs de rénovation et de personnalisation. Son exposition sud-est garantit une luminosité agréable tout au long de la journée.
Description du bien :
? Salon et pièces de vie à repenser selon vos envies.
? 4 chambres offrant de nombreuses possibilités d'aménagement.
? Une salle d'eau et un WC indépendant pour plus de confort.
? Un dressing pratique pour optimiser l'espace de rangement.
? Tout à rénover : Laissez libre cours à votre imagination pour créer un appartement à votre image.
Points forts :
? Emplacement idéal : En plein centre-ville, proche des commodités.
? Calme et tranquillité : Un cadre de vie agréable malgré la centralité.
? Belle exposition : Sud-est pour un ensoleillement optimal.
? Gros potentiel : Une surface généreuse permettant de nombreux aménagements après rénovation.
Cet appartement est une opportunité rare pour les investisseurs ou les particuliers souhaitant façonner leur futur chez-soi. Des plans de rénovation peuvent être fournis sur demande pour vous aider à vous projeter.
? Contactez-nous dès maintenant pour plus d'informations ou pour organiser une visite !
Honoraires à la charge du vendeur. Dans une copropriété de 5 lots. Aucune procédure n'est en cours. Classe énergie G, Classe climat G Logement à consommation énergétique excessive. Montant estimé des dépenses annuelles d'énergie pour un usage standard : entre 10130.00 et 13760.00 sur les années 2021, 2022 et 2023 (abonnements compris). Les informations sur les risques auxquels ce bien est exposé sont disponibles sur le site Géorisques : georisques.gouv.fr.
- Type de bien : Appartement
- DPE : G -> 450 kWh/².an
- GES : G -> 80 kg eq CO2/².an
- Surface : 80 m²
- Localisation : France - Auvergne-Rhône-Alpes - Loire
- Ville : Violay
- Code postal : 42780
- Annonce créée le 30/05/2025





